Métro Cuire, emplacement premium pour ce superbe appartement T8 toit terrasse de 202 m², au 6ème et dernier étage d'une résidence de standing avec gardien et parc arboré de plus de 6 700 m².
Véritable maison sur le toit, cet appartement familial vous offre la quiétude et la discrétion d'un bien seul sur son palier.
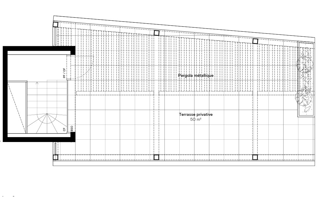
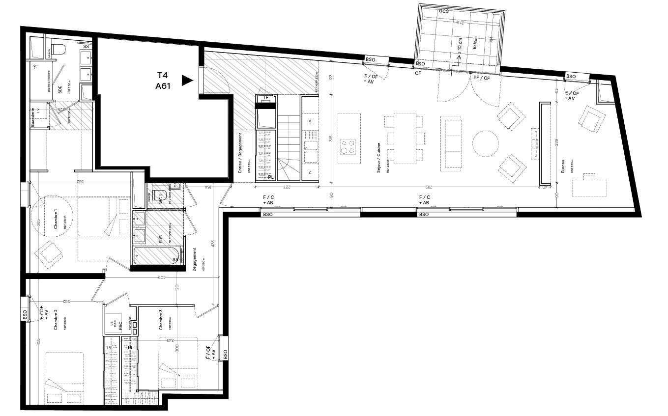
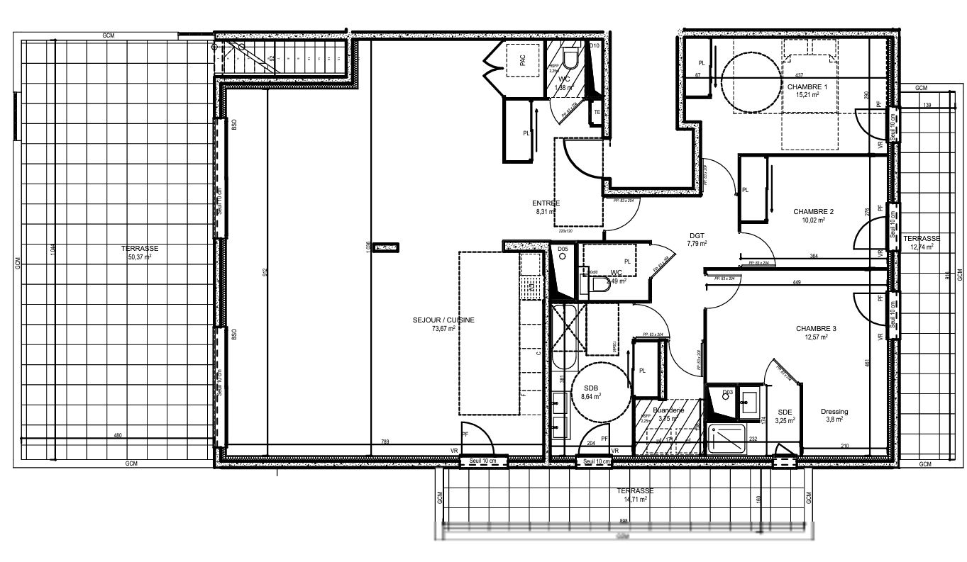
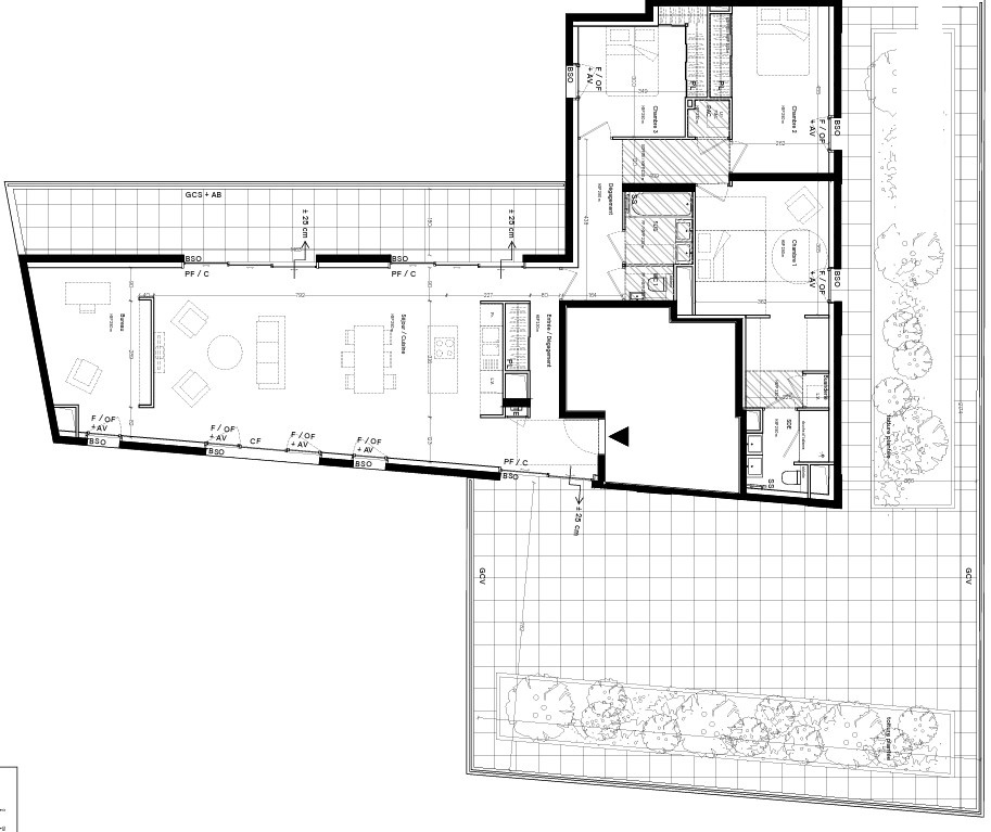
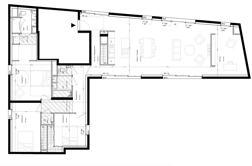
Avec plus de 32 m² de terrasses orientées Sud-Ouest sur les jardins intérieurs et sans aucun vis-à-vis, il jouit d'une position dominante et d'une vue panoramique sur Fourvière, Lyon et la chaine des Alpes. L'agencement, les ouvertures et les volumes ont été repensés par un architecte, pour favoriser la luminosité et la qualité de vie au quotidien. L'espace jour de plus de 80 m², beigné de lumière se compose d'un vaste salon, d'une cuisine équipée avec large zone repas et d'une salle à manger. Chacune de ces pièces se prolongent vers les extérieurs grâce aux différentes ouvertures et baies vitrées.
Côté nuit, l'espace parental à l'Est, accueille une chambre de plus de 22 m², une vaste salle d'eau avec buanderie, des toilettes et un bureau de près de 13 m² ouvrant sur l'une des terrasses. La partie Ouest est réservée aux enfants et/ou invités avec 3 grandes chambres de 14,7 à 15,6 m², deux salles d'eau, un cabinet de toilette et des espaces de rangements.
Entièrement pensé pour vous offrir confort et praticité au quotidien, l'appartement dispose d'un grand garage fermé en sous-sol, de deux places de parking privatives situées à moins de 6 mètres de l'entrée du bâtiment et de deux caves mitoyennes.
Parmi les nombreux atouts de ce bien d'exception : L'emplacement en proximité de toutes les commodités (à deux pas de la Croix-Rousse, métro C station Cuire au pied, commerces de proximité, écoles, hôpitaux, voie verte, axes routiers, ), La résidence aux prestations de haut niveau (sécurisée, gardien, parc arboré de plusieurs hectares, ), La vue panoramique et la luminosité exceptionnelle, Les volumes offerts et l'exigence apportée aux agencements, La triple exposition agrémentée de larges espaces extérieurs à l'intimité préservée, La qualité de l'isolation et des équipements comportant climatisation, cheminée fonctionnelle ou triple vitrage dans toutes les chambres.
Vous souhaitez en savoir plus sur ce bien rare à la vente, conjuguant calme, confort et sérénité pour une invitation à une vie citadine optimale ? Contactez Philippe LEVACHER
Honoraires à la charge du vendeur. Dans une copropriété de 320 lots. Quote-part moyenne du budget prévisionnel 4 805 /an. Aucune procédure n'est en cours. Classe énergie C, Classe climat A Montant estimé des dépenses annuelles d'énergie pour un usage standard : entre 2670.00 et 3660.00 sur les années 2021, 2022 et 2023 (abonnements compris). Les informations sur les risques auxquels ce bien est exposé sont disponibles sur le site Géorisques : georisques.gouv.fr.
Votre conseiller CESAR ET BRUTUS : Agent immobilier - Philippe LEVACHER Carte T CPI 6901 2019 000 043 692