Appartement traversant - Dernier étage avec 31m2 de terrasse
Talence 33400
0
Honoraires à la charge du vendeur.
DOMINEZ TALENCE - ATTIQUE TRAVERSANT AVEC TERRASSE
Au dernier étage avec ascenseur, découvrez ce superbe appartement T3 baigné de lumière, offrant confort et de modernité.
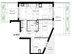
Un espace de vie traversant de 28m² s'ouvre sur deux magnifiques terrasses totalisant 31m², véritables invitations à la détente, aux repas ensoleillés ou aux moments partagés en famille ou entre amis.
L'espace nuit se compose de deux chambres, dont une suite parentale avec salle d'eau privative, ainsi qu'une salle de bain indépendante, alliant intimité et fonctionnalité.
Idéalement situé à Talence, à proximité immédiate des commerces et des transports en commun, cet appartement sans vis-à-vis séduit par ses volumes, sa luminosité exceptionnelle et son calme.
Un lieu rare où style de vie, confort et élégance se rencontrent pour créer votre futur chez-vous.
Deux places de parking sécurisées complètent ce bien en sus obligatoire (30 000).
Pour plus d'informations, merci de nous contacter.
DOMINEZ TALENCE - ATTIQUE TRAVERSANT AVEC TERRASSE
Honoraires à la charge du vendeur. Dans une copropriété de 26 lots. Aucune procédure n'est en cours. DPE en cours. Les informations sur les risques auxquels ce bien est exposé sont disponibles sur le site Géorisques : georisques.gouv.fr.