Hosman vous propose à l'achat cet appartement lumineux de 64,5 m² Carrez, idéalement situé sur le Boulevard Bineau à Neuilly-sur-Seine. Ce bien traversant est au 2ème étage d'un immeuble de 5 étages avec ascenseur.
Planifiez facilement votre visite en choisissant le créneau qui vous convient depuis le site d'Hosman.
Des rafraîchissements sont à effectuer dans l'appartement.
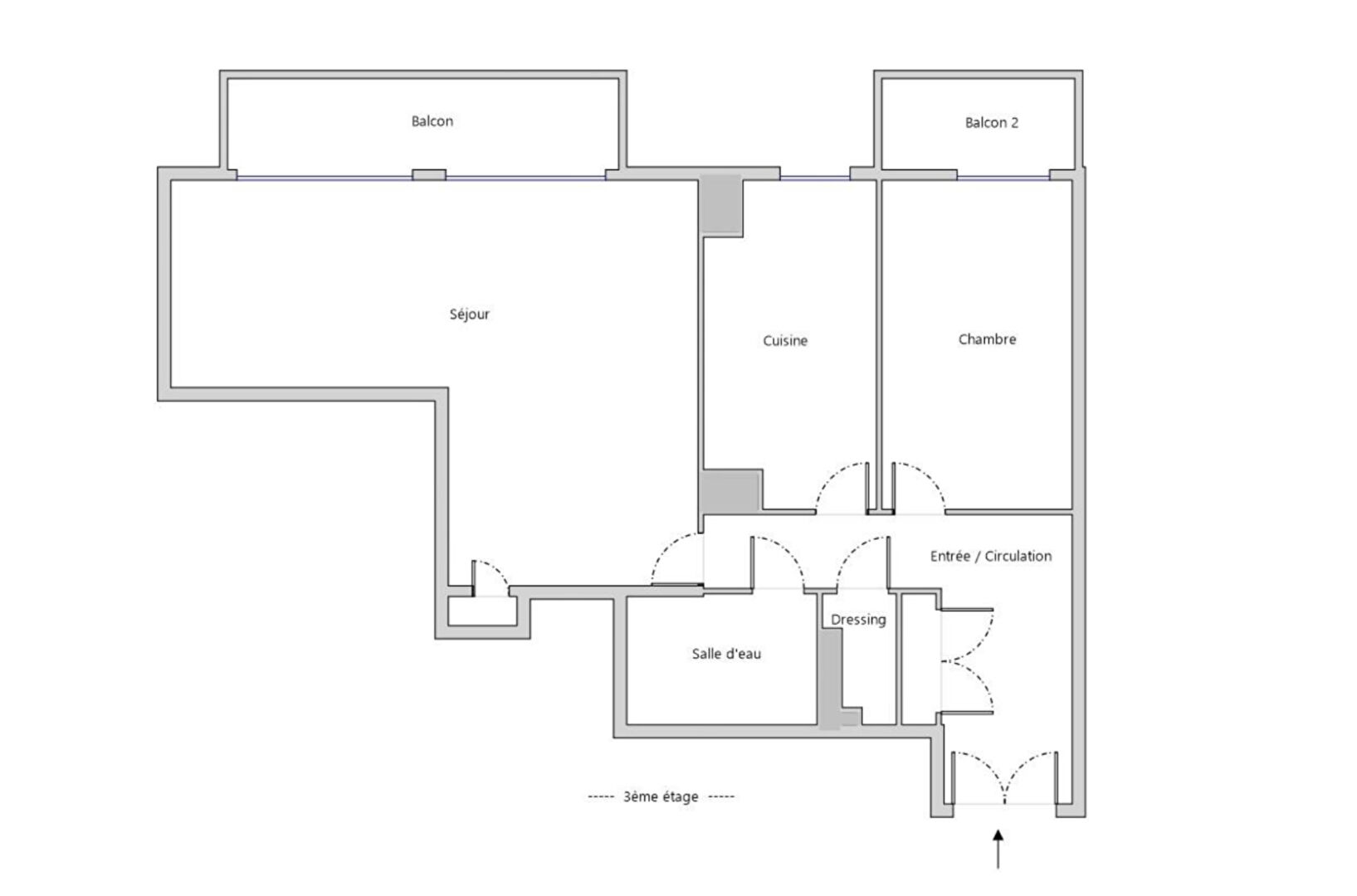
L'appartement se compose de :
- Un double séjour spacieux et lumineux avec une exposition Est
- 2 balcons avec vue sur la Seine
- Belle hauteur sous plafond
- Deux chambres confortables
- Une cuisine séparée équipée
- Une salle de bain avec baignoire
- Des toilettes séparées
Une cave est incluse dans l'offre, offrant un espace de rangement supplémentaire.
Les charges de copropriété sont de 300 euros par trimestre.
Localisation :
- Commodités : A proximité immédiate des commerces, restaurants et services variés.
- Espaces verts : Parc des Impressionnistes à 10 minutes à pied, parfait pour les promenades.
- Écoles : École primaire Desbordes-Valmore et Collège André Maurois à environ 500 mètres.
- Transports : Station de métro Pont de Neuilly (ligne 1) à 10 minutes à pied, et plusieurs lignes de bus à proximité immédiate.
Copropriété :
Le bien est soumis au statut de copropriété. L'immeuble, construit entre 1948 et 1969, est en bon état avec des parties communes bien entretenues et un local à vélos.
Hosman s'efforce de réinventer l'agence immobilière en offrant un service innovant et transparent aux acheteurs et aux vendeurs. Nos frais d'agence sont de 12 900 euros fixes à la charge du vendeur.
Si vous êtes un professionnel de l'immobilier (agent, mandataire ou chasseur immobilier), sachez que toutes les annonces Hosman sont ouvertes à la collaboration. N'hésitez pas à nous contacter pour en discuter.
65 m²
8 923 €
3
2
1
1
2 sur 5
Séparée
Oui
Oui
Consommations énergétiques
Logement économe
248
Logement énergivore (kWhEP/m2/an)
Émissions de gaz à effet de serre
Faible émission de GES
54
Forte émission de GES(kgeqCO2/m2/an)
Contact HOSMAN
Contacter gratuitement à l'aide du formulaire ci-dessous.