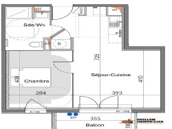
Découvrez ce magnifique appartement T2 neuf, situé au 3ème étage d'une résidence de standing, offrant une vue imprenable sur les montagnes. Avec une surface habitable de 54,10 m², cet appartement allie élégance et fonctionnalité.
Construite en 2028, cette résidence bénéficie des dernières normes RT2020, garantissant une isolation optimale et des économies d'énergie. L'appartement est équipé d'un chauffage individuel, de fenêtres en PVC à double vitrage, et d'une cuisine aménagée avec un coin cuisine pratique.
Le séjour spacieux de 25 m² baigne dans la lumière grâce à son exposition sud-ouest, tandis que la terrasse de 6 m² vous invite à profiter des doux moments en plein air. La chambre, la salle d'eau et les WC complètent ce bien conforme aux normes PMR.
La résidence, neuve et moderne, comprend un ascenseur et un sous-sol. Deux places de stationnement intérieures sont également incluses, offrant un confort supplémentaire.
Imaginez-vous vivre dans ce cadre idyllique, où chaque détail a été pensé pour votre bien-être. La vue sur les montagnes, la terrasse ensoleillée, et les finitions haut de gamme font de cet appartement un lieu de vie exceptionnel.
À proximité, vous trouverez plusieurs commodités : une crèche et des parcs à 5 min à pied, des écoles maternelles et élémentaires, des restaurants, des médecins généralistes et des commerces d'alimentation générale à 10 min à pied. La fibre est également éligible, garantissant une connexion internet haut débit.
Ne manquez pas cette opportunité unique de vivre dans un appartement neuf, alliant confort, modernité et un cadre de vie exceptionnel.
Honoraires à la charge du vendeur. Dans une copropriété de 48 lots. Quote-part moyenne du budget prévisionnel 960 /an. Aucune procédure n'est en cours. Non soumis au DPE. Les informations sur les risques auxquels ce bien est exposé sont disponibles sur le site Géorisques : georisques.gouv.fr.
Votre conseiller GUILLEM IMMOBILIER : Présidente - Solange GUILLEMIN Carte T 6601 2023 000 000 001 RCP ALLIANZ IARD