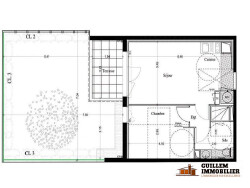
Imaginez-vous dans un cadre de vie idyllique, où chaque détail a été pensé pour votre bien-être. Cet appartement T2, construit en 2024, est un véritable havre de paix, alliant modernité et confort. Avec une surface habitable de 40,60 m², cet appartement neuf vous offre un espace de vie lumineux et fonctionnel.
L'appartement se compose d'un séjour spacieux de 22 m², parfait pour recevoir vos proches ou vous détendre après une longue journée. La cuisine aménagée, intégrée dans un coin cuisine, est idéale pour les amateurs de cuisine. La chambre, baignée de lumière naturelle, vous garantit des nuits paisibles. La salle d'eau et les WC, séparés, complètent cet espace de vie avec une touche de modernité.
L'un des atouts majeurs de cet appartement est sa terrasse de 6 m², idéale pour profiter des beaux jours. Imaginez-vous y prendre votre petit-déjeuner au lever du soleil ou y organiser des dîners en soirée, bercés par la douce brise du soir. Le jardin privatif de 45 m² est un véritable écrin de verdure, parfait pour les amateurs de nature. Vous pourrez y cultiver vos propres légumes, y installer un coin détente ou simplement vous y reposer en admirant la vue sur la terrasse.
Cet appartement, situé au deuxième étage, bénéficie d'une exposition ouest, offrant des couchers de soleil magnifiques. Conforme aux normes PMR, il est accessible à tous. Les ouvertures en PVC et les portes à double vitrage garantissent une isolation optimale, conformément à la norme RT2012. Le chauffage individuel assure un confort thermique toute l'année.
Pour votre tranquillité, un stationnement extérieur est inclus. Vous pourrez ainsi garer votre véhicule en toute sécurité.
À proximité, vous trouverez plusieurs commodités pratiques pour faciliter votre quotidien. À 5 minutes à pied, vous pourrez prendre le bus ou vous rendre à l'alimentation générale. À 10 minutes à pied, vous trouverez plusieurs restaurants et une école maternelle. À 5 minutes en voiture, vous aurez accès à un parc et jardin, à plusieurs crèches, collèges, médecins généralistes et au tramway. À 15 minutes à pied, vous pourrez vous rendre à l'école élémentaire.
Honoraires à la charge du vendeur. Dans une copropriété de 78 lots. Quote-part moyenne du budget prévisionnel 738 /an. Aucune procédure n'est en cours. Non soumis au DPE. Les informations sur les risques auxquels ce bien est exposé sont disponibles sur le site Géorisques : georisques.gouv.fr.
Votre conseiller GUILLEM IMMOBILIER : Présidente - Solange GUILLEMIN Carte T 6601 2023 000 000 001 RCP ALLIANZ IARD