Appartement type 2 dans le centre de la commune avec 2 place
Avensan 33480
0
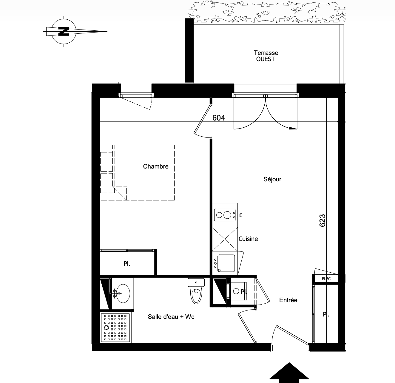
A vendre Avensan centre bourg appartement type 2, très bien entretenu, au calme, spacieux, lumineux, proche des commodités de 46.11m2 au 1er étage et dernier étage d'une résidence sécurisée Comprend : - entrée spacieuse, - salon séjour spacieux avec cuisine aménagée et équipée semi ouverte de près de 28 m2, - chambre avec placard - salle de bain spacieuse avec wc A l'extérieur : 2 places de stationnement nominative Les plus : aucuns travaux à prévoir, au calme, à seulement 5 minutes de Castelnau de Médoc, exposition Est/Ouest, 2 places de stationnement nominatives, cumulus de 150 litres remplacé en 2020 Un bien idéal pour un premier achat, un investissement locatif ou pour profiter d'un cadre de vie serein à deux pas des commodités avec un emplacement pratique pour faciliter le quotidien À découvrir sans tarder .... Cette annonce vous est proposée par LUIS Maria - EI - NoRSAC: 822706586, Enregistré à Greffe du tribunal de commerce de Bordeaux - Annonce rédigée et publiée par un Agent Mandataire -
46.11 m²
2 819 €
19 m²
2
1
1
1 sur 1
60 € / mois
2007
Est
Ouest
2
Oui
Oui (18 lots)
Consommations énergétiques
Logement économe
176
Logement énergivore (kWhEP/m2/an)
Émissions de gaz à effet de serre
Faible émission de GES
6
Forte émission de GES(kgeqCO2/m2/an)
Contact Maria LUIS
Contacter gratuitement à l'aide du formulaire ci-dessous.