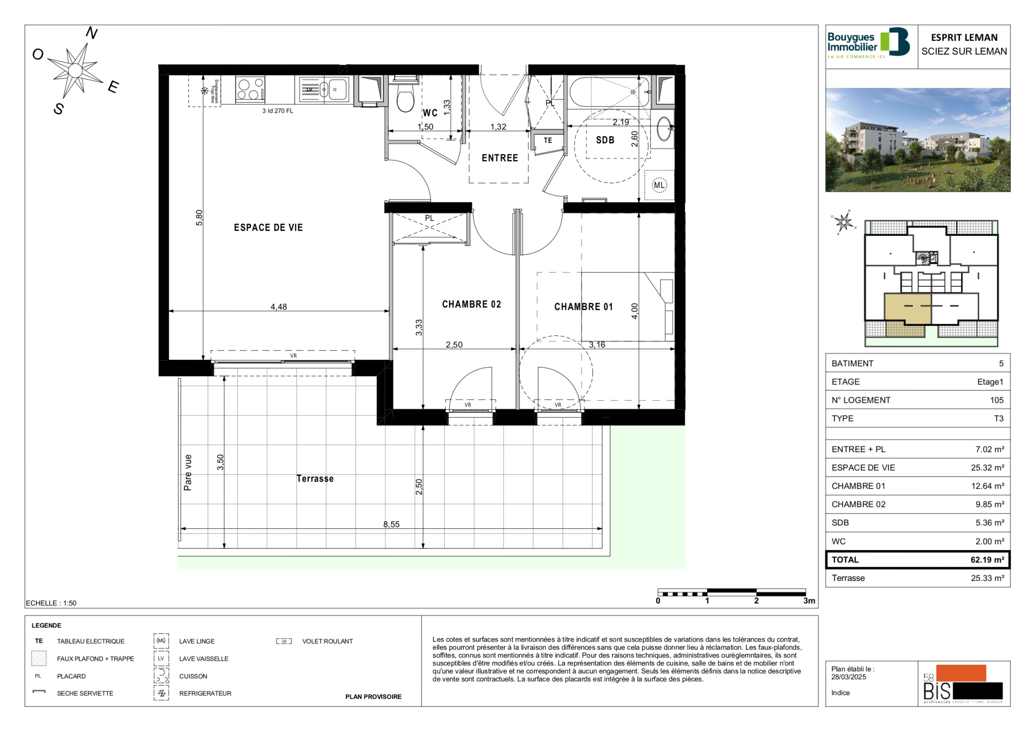
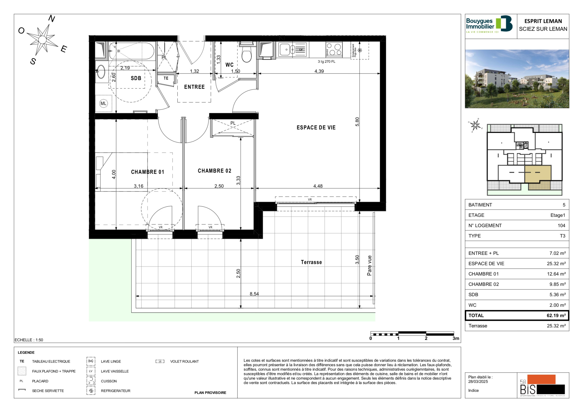
Idéalement situé, à proximité des commodités, du CEVA et des écoles, Poirier Immobilier vous présente ce bel appartement de type 3, situé au premier étage d'une copropriété récente et bien entretenue (construction 2005). D'une surface de 65 m2, il se compose de deux chambres, d'une salle de bain avec baignoire et douche, d'un WC indépendant, ainsi que d'une lumineuse pièce de vie de plus de 35 m2 ouverte sur la cuisine. Vous apprécierez également sa belle terrasse de 14 m2, orientée au calme et sans vis-à-vis, parfaite pour profiter des beaux jours. Un garage double de 32 m2 vient compléter ce bien, offrant confort et praticité au quotidien. Un cadre de vie agréable, à deux pas du lac et des transports, alliant sérénité et proximité. À visiter sans tarder ! Les informations sur les risques auxquels ce bien est exposé sont disponibles sur le site www.georisques.gouv.fr.
65 m²
4 385 €
35 m²
3
2
1
1
1 sur 3
128 € / mois
2005
Ouest
Nord
Oui
1
Oui
1
Oui
Oui (46 lots)
Consommations énergétiques
Logement économe
237
Logement énergivore (kWhEP/m2/an)
Émissions de gaz à effet de serre
Faible émission de GES
7
Forte émission de GES(kgeqCO2/m2/an)
Contact PASQUIER
Contacter gratuitement à l'aide du formulaire ci-dessous.