Honoraires à la charge de l'acquéreur (Prix hors honoraires : 204000 euros).
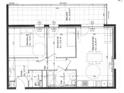
Appartement 3 pièces Kingersheim Découvrez ce bel appartement 3 pièces offrant confort, fonctionnalité et prestations actuelles, dans un environnement calme et recherché. D'une surface d'environ 63 m², l'appartement se compose de : une pièce de vie lumineuse avec cuisine ouverte, donnant accès à l'espace extérieur deux chambres confortables une salle de bains moderne des WC séparés des rangements optimisés Prestations actuelles (normes RE / RT, isolation performante) Stationnement privatif Résidence récente et sécurisée Possibilité d'acquérir un garage en sus. Proximité immédiate des commerces, axes routiers, transports et commodités, tout en bénéficiant d'un cadre de vie agréable. Cette résidence à taille humaine allie confort, design contemporain et emplacement pratique, à proximité des commodités, des transports et des axes routiers. Caractéristiques principales Nombre de logements : 19 appartements répartis sur 3 étages Espaces extérieurs : balcons, terrasses ou jardins privatifs selon les logements Prestations intérieures : carrelage dans les pièces de vie, parquet stratifié dans les chambres, peinture lisse sur les murs, chauffage individuel au gaz avec plancher chauffant, radiateurs sèche-serviettes, WC suspendus, ascenseur Localisation La résidence bénéficie d'une excellente desserte : À 11 minutes en voiture du centre de Mulhouse Accès rapide aux autoroutes internationales et à l'aéroport de Bâle-Mulhouse Proximité immédiate de commerces, d'activités sportives et culturelles, ainsi que d'établissements scolaires Je vous invite à découvrir cet appartement ou vous n'aurez plus qu'à déposer vos valises pour profiter pleinement d'une nouvelle vie.Les matériaux ont été sélectionnés avec gout. A la recherche d'un nouveau chez soi, contactez-moi. VALERIE MEY Agent Commercial en immobilier immatriculé au Registre Spécial des Agents Commerciaux (RSAC) du Tribunal de Commerce de Mulhouse sous le numéro 891 838 732
Honoraires inclus de 4.9% TTC à la charge de l'acquéreur. Prix hors honoraires 204 000 . Dans une copropriété de 19 lots. Quote-part moyenne du budget prévisionnel 200 /an. Aucune procédure n'est en cours. Classe énergie C, Classe climat C Montant estimé des dépenses annuelles d'énergie pour un usage standard : entre 463.00 et 626.00 sur les années 2021, 2022 et 2023 (abonnements compris). Les informations sur les risques auxquels ce bien est exposé sont disponibles sur le site Géorisques : georisques.gouv.fr.