Appartement type 3 lumineux et spacieux de 69 m2 avec balcon
Le Haillan 33185
0
Honoraires à la charge de l'acquéreur (Prix hors honoraires : 233000 euros).
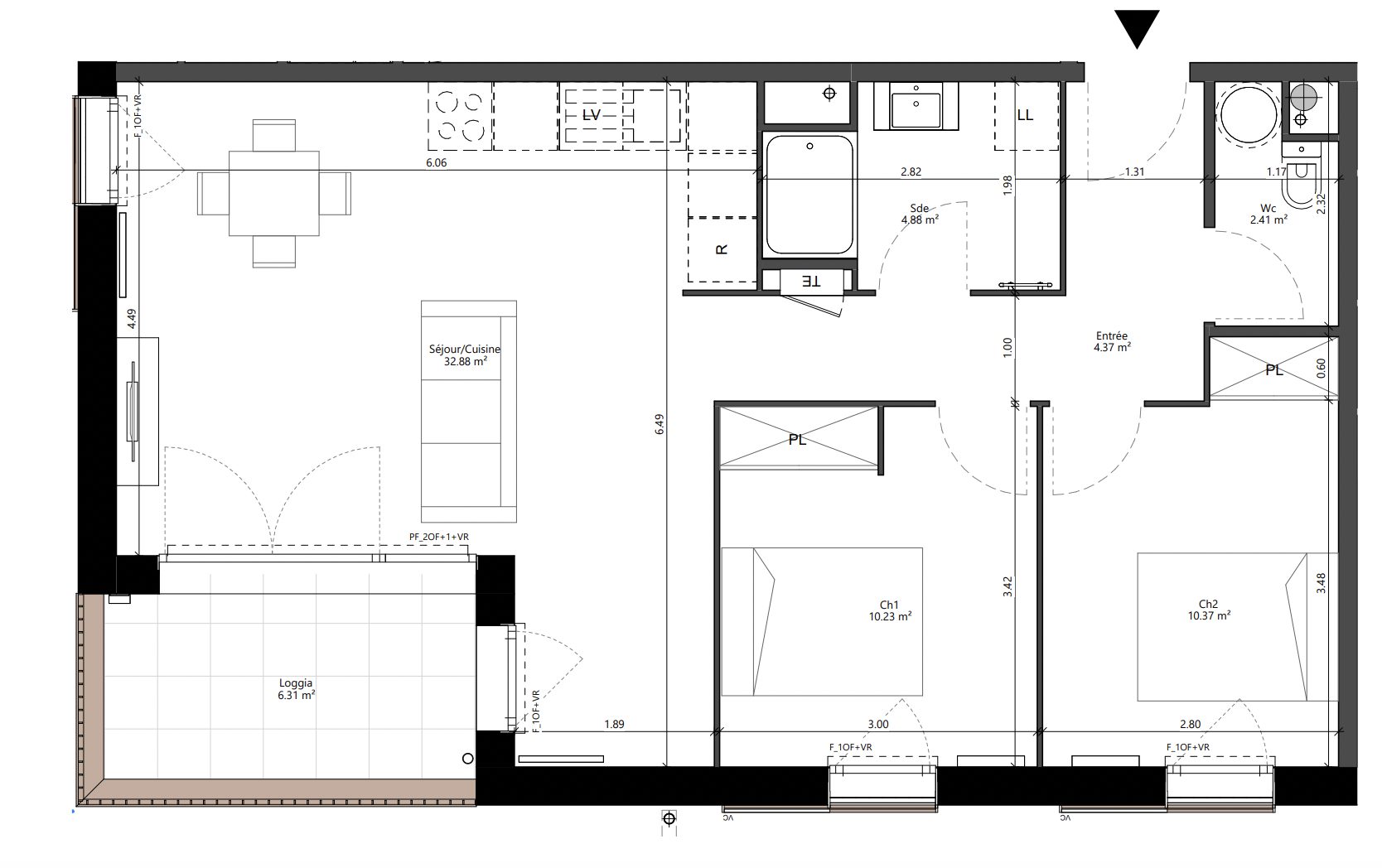
A vendre Le Haillan centre appartement type 3, très bien entretenu, au calme, spacieux, lumineux, proche des commodités de 68,88m2 au deuxième étage d'une résidence sécurisée avec ascenseur. Comprend entrée avec placard, salon séjour spacieux avec cuisine aménagée et équipée ouverte de 35,90m2. Un coin nuit composé de 2 chambres avec placards, salle d'eau spacieuse de 5,41m2 (raccordement machine à laver le linge), wc séparé avec lave main. Les plus : balcon de 20,74 m2 exposé Est/Sud, 1 box nominatif de 14m2(pouvant être fermé), cave, garages à vélos, huisseries PVC, aucun travaux à prévoir. A proximité immédiate des commodités et des transports en communs Ligne G, bus 71 ainsi que 84 À découvrir sans tarder Cette annonce vous est proposée par LUIS Maria - EI - NoRSAC: 822706586, Enregistré à Greffe du tribunal de commerce de Bordeaux - Annonce rédigée et publiée par un Agent Mandataire -
68.88 m²
3 557 €
20 m²
35 m²
3
2
1
1
2 sur 2
5.15 %
1988
Sud
Ouest
1 (20 m²)
Oui
Oui
1
Oui
Oui (55 lots)
Consommations énergétiques
Logement économe
170
Logement énergivore (kWhEP/m2/an)
Émissions de gaz à effet de serre
Faible émission de GES
6
Forte émission de GES(kgeqCO2/m2/an)
Contact Maria LUIS
Contacter gratuitement à l'aide du formulaire ci-dessous.