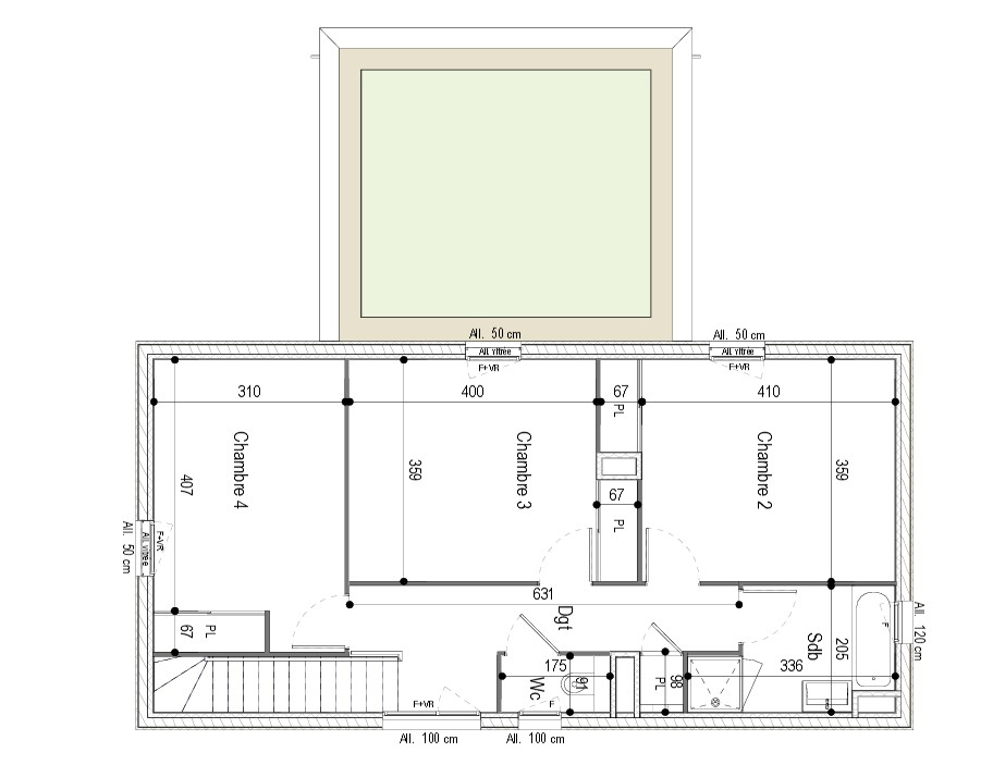
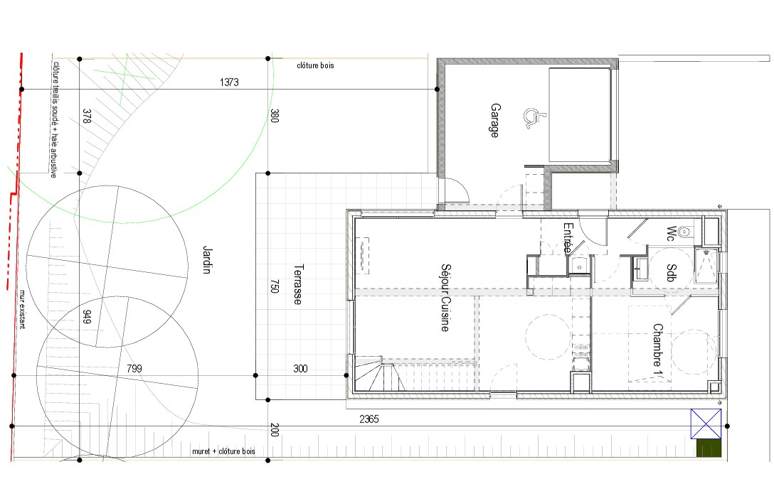
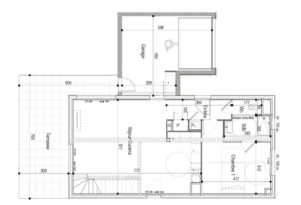
A Brignais, au calme d'un quartier résidentiel recherché, cet appartement de 201m² carrez s'inscrit dans une maison divisée en deux lots, chacun bénéficiant d'une entrée totalement indépendante. Niché sur une parcelle de 577m², ce bien en duplex offre des volumes généreux, une belle luminosité et un cadre de vie privilégié. Le jardin mène à une entrée discrète et fluide, desservant une cuisine indépendante au style contemporain, pensée pour allier esthétisme et praticité au quotidien. Le séjour, inondé de lumière naturelle grâce à une généreuse baie vitrée, prolonge l'espace de vie vers une vaste terrasse à la vue dégagée, invitant à la contemplation. Ce niveau propose également une pièce polyvalente pouvant faire office de chambre d'enfant ou de bureau, deux grandes chambres avec rangements intégrés, un second espace bureau idéal pour le télétravail, une salle de bains, ainsi qu'un cellier fonctionnel complétant harmonieusement l'ensemble. A l'étage inférieur, une vaste suite parentale offre un véritable cocon d'intimité, agrémentée d'une salle d'eau privative aux lignes épurées. Un espace atelier, propice à la création ou aux loisirs, ainsi qu'une buanderie discrètement intégrée, viennent parfaire ce niveau, apportant confort, fonctionnalité et liberté d'aménagement selon les envies. A l'extérieur, deux terrasses bien distinctes invitent à savourer les beaux jours : l'une, attenante au séjour, bénéficie d'une orientation idéale pour capter la lumière et offre une vue dégagée sur la nature environnante ; l'autre, plus discrète, se niche au coeur du jardin. Ensemble, elles composent un cadre harmonieux et propice à la détente. Ce bien singulier offre tout le confort et les atouts d'une maison, accès direct à l'extérieur, ambiance chaleureuse et indépendante tout en bénéficiant de la liberté et de la simplicité d'un appartement. Un cocon de caractère, où chaque jour invite à la sérénité. CLASSE ENERGIE : E / CLASSE CLIMAT : D Montant moyen estimé des dépenses annuelles d'énergie pour un usage standard, établi à partir des prix de l'énergie de l'année 2021, 2022, 2023 : entre 5270 et 7200 euros Contact: Emmanuel - 06 67 58 74 89 Copropriété de 2 lots (Pas de procédure en cours). Emmanuel BIROT (EI) Agent Commercial - Numéro RSAC : 833 509 649 - Lyon.