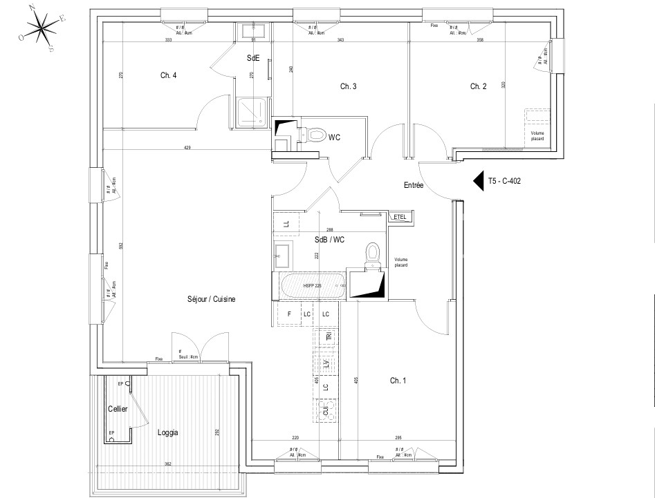
Vaux-en-Velin (69120) Rue Georges Dimitrov Je vous propose en exclusivité un grand appartement T5 de 103.44 m² avec 4 chambres + ascenseur + cave + box fermé.
A vendre, bel appartement familial de 90 m², situé au 3? étage avec ascenseur d'une résidence bien entretenue, proche de toutes les commodités (transports, écoles, commerces). (actuellement loué avec 4 chambres indépendantes avec un revenu locatif actuel : 2 500 euros par mois
Ce bien se compose d'une entrée, qui dispatch ensuite les 4 chambres. Chaque chambre dispose d'un coin cuisine, d'une chambre, d'un WC et d'une salle d'eau. ( dont deux chambres avec balcon)
L'appartement est exposé nord-ouest.
L'appartement est vendu avec une cave et un box fermé (possibilité d'acquérir le garage en sus pour 5 000 euros).
Prix de vente : 299 000 euros FAI
Idéal investisseur, appartement vendu loué avec une très belle rentabilité et un emplacement recherché au coeur de Vaux-en-Velin.
Idéal pour investisseur, aucuns gros travaux à prévoir.
DPE : C
Prix de vente : 299.000 euros, honoraires à la charge du vendeur.
Pour visiter et vous accompagner dans votre projet, contactez Thierry Coll, agissant sous le statut de conseiller immobilier indépendant auprès de la SAS Propriétés privées au 06 62 37 23 23 ou par courriel à t.coll@proprietes-privees.com.
Mandat n° 428202
RCS 487 624 777
Le professionnel vous conseille, garantit et sécurise votre projet immobilier.
Ce bien est soumis au statut de copropriété. Nombre de lots de la copropriété : 92.
Charges annuelles payées par le vendeur : 5280 euros.
Copropriété de 257 lots - dont 92 lots habitation. ().
Charges annuelles : 5280 euros.
Les informations sur les risques auxquels ce bien est exposé sont disponibles sur le site Géorisques : www. georisques. gouv. fr
103 m²
2 903 €
4
4
4
4
3 sur 9
Aménagée
Ouest
Nord
Oui
Consommations énergétiques
Logement économe
118
Logement énergivore (kWhEP/m2/an)
Émissions de gaz à effet de serre
Faible émission de GES
10
Forte émission de GES(kgeqCO2/m2/an)
Contact Thierry COLL
Contacter gratuitement à l'aide du formulaire ci-dessous.