69120 VAULX EN VELIN , je vous propose un appartement T4 de 75 m² dans le Quartier La Soie, Vaulx-en-Velin (2020)
Situé au 1er étage d'une résidence récente et sécurisée construite en 2020, cet appartement T4 de 75 m² offre un cadre de vie agréable et moderne, au coeur du quartier prisé de La Soie.
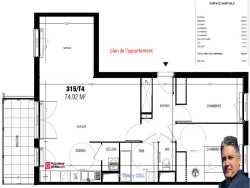
Agencement de l'appartement :
Séjour lumineux avec cuisine ouverte entièrement équipée (28 m²)
Trois chambres, dont deux avec placards aménagés
Salle de bain avec baignoire
WC séparé
Entrée avec placard intégré
Cellier et balcon pour profiter de l'extérieur
Actuellement la chambre (3) côté séjour a été ouverte pour aménager une partie salon mais possibilité de la retransformer facilement en chambre indépendante.
Atouts complémentaires :
Grand garage fermé PMR en sous-sol (-2)
Copropriété sécurisée avec jardin collectif arboré et local à vélos
Menuiseries PVC double vitrage
Chauffe-eau au gaz de ville
Faibles charges de copropriété : environ 85 euros/mois
Localisation idéale :
A seulement 2 minutes à pied du métro A et du tram T3 , La Soie', vous rejoignez le centre de Lyon (Bellecour, Hôtel de Ville, Part-Dieu) en moins de 20 minutes. Accès rapide également aux grands axes routiers : 5 min du périphérique et 10 min de la rocade Est.
Crèches, écoles, commerces (supermarché, boulangerie, restaurants, pharmacie, etc.) sont accessibles à pied.
Venez découvrir ce bien situé dans un quartier calme et arboré.
Mandat N° 423604
DPE: B. Prix de vente : 310 000 euros, honoraires à la charge du vendeur.
Pour visiter et vous accompagner dans votre projet, contactez Thierry Coll, agissant sous le statut de conseiller immobilier.
indépendant auprès de la SAS Propriétés Privées au 06 62 37 23 23 ou par courriel à t.coll@proprietes-privees.com.
RCS 487 624 777 -
Le professionnel vous conseille, garantit et sécurise votre projet immobilier.
Ce bien est soumis au statut de copropriété. Nombre de lots de la copropriété : 75
Charges annuelles payées par le vendeur : 1020 euros.
Copropriété de 75 lots - dont 75 lots habitation. ().
Charges annuelles : 1020 euros.
Les informations sur les risques auxquels ce bien est exposé sont disponibles sur le site Géorisques : www. georisques. gouv. fr
75 m²
4 133 €
4
3
1
1
1 sur 8
2020
Aménagée
Ouest
Oui
Consommations énergétiques
Logement économe
54
Logement énergivore (kWhEP/m2/an)
Émissions de gaz à effet de serre
Faible émission de GES
12
Forte émission de GES(kgeqCO2/m2/an)
Contact Thierry COLL
Contacter gratuitement à l'aide du formulaire ci-dessous.