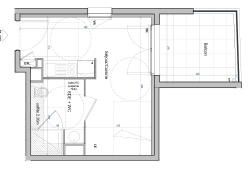
Dernière opportunité ! A visiter ! A Vénissieux, proximité du Tram T6, je vous propose à la vente ce bel appartement de 21,43m² avec Terrasse aux dernières normes comprenant : une entrée, un séjour/chambre avec coinc uisine ouverte donnant sur la terrasse de 7m² , une salle d'eau et un WC. Isolation phonique et thermique renforcés, faibles charges. Visuel non contractuel. Merci de contacter votre conseiller Grégory pour plus d'informations Copropriété de 38 lots - dont 38 lots habitation. (Pas de procédure en cours). Charges annuelles : 400 euros.