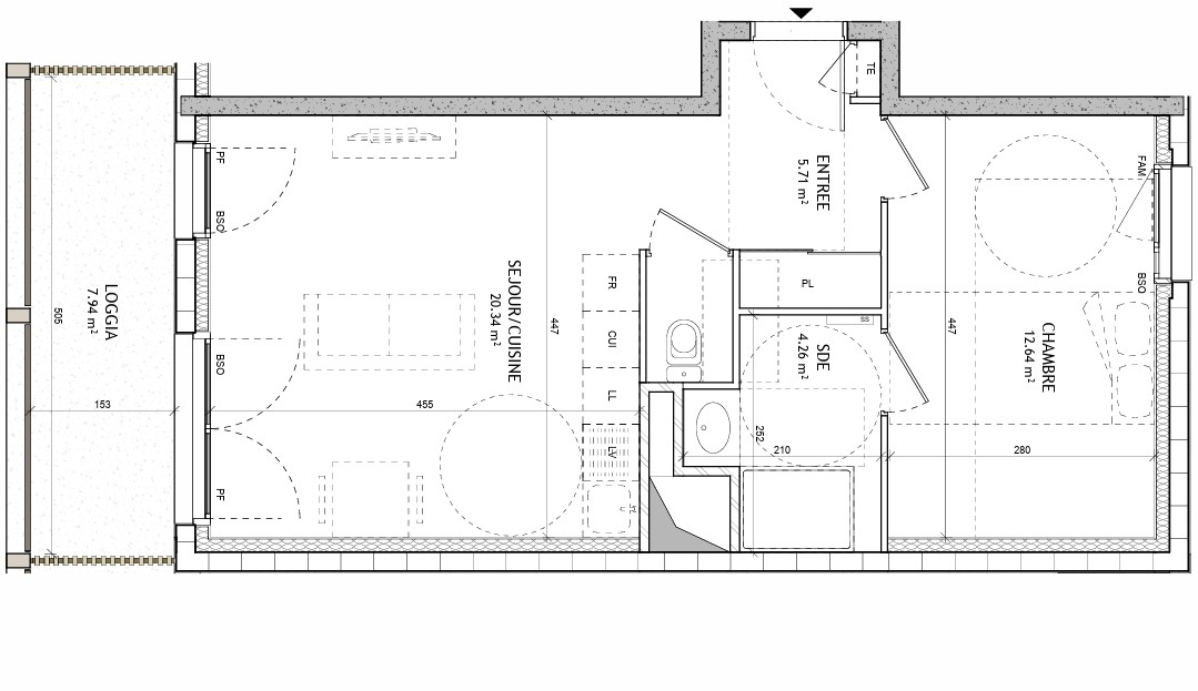
A Villeurbanne CUSSET, je vous propose à la vente ce très beau T3 de 61m² avec son balcon de 7,80m² dans une prochaine résidence de standing aux dernières normes comprenant : Une entrée, un séjour avec cuisine ouverte donnant sur la terrasse, deux chambres, une salle d'e bains et un WC séparé. Résidence contemporaine aux très belles prestations intérieures L'appartement est vendu avec un parking en sous-sol Prix en TVA réduite, soumis à des plafonds de revenus, voir conditions en agence Bâtiment basse consommation, faibles charges Visuel non contractuel Merci de contacter votre conseiller pour plus d'informations Copropriété de 39 lots - dont 39 lots habitation. Charges annuelles : 1000 euros.