SAINT JUST SAINT RAMBERT -PLATEAU A AMENAGER avec garage
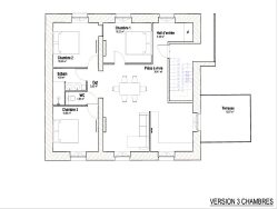
Dans un ensemble immobilier de 8 lots, Au 1er étage sur 2, Loire Investissement vous propose un plateau à aménager d'une superficie de 84.68 m², terrasse de 12 m² avec vue imprenable sur la Loire Possibilité de créer T3 ou T4
Des travaux sont en cours de réalisation : - Changement des menuiseries en PVC/ALU - Création d'une terrasse en bois avec garde-corps métal de 12 m² - Reprise de la façade, enduit ton pierre - Modification des escaliers d'accès
Pompe à chaleur autorisée Garage
Places de stationnement à proximité
DPE : E - Montant estimé des dépenses annuelles d'énergie pour un usage standard entre 1580 et 2190 par an. Prix moyens des énergies indexés au 1er janvier 2021 (abonnements compris)
Honoraires à la charge du vendeur. Classe énergie E, Classe climat E Montant moyen estimé des dépenses annuelles d'énergie pour un usage standard, établi à partir des prix de l'énergie de l'année 2021 : entre 1580.00 et 2190.00 . Les informations sur les risques auxquels ce bien est exposé sont disponibles sur le site Géorisques : georisques.gouv.fr.
Votre conseiller Loire Investissement Saint Just Saint Rambert : Chantal DUPLOMB Agent commercial (Entreprise individuelle) RSAC 923219281 RCP 62643368
84.68 m²
2 067 €
1
1 sur 2
Oui
1
Oui
Consommations énergétiques
Logement économe
298
Logement énergivore (kWhEP/m2/an)
Émissions de gaz à effet de serre
Faible émission de GES
65
Forte émission de GES(kgeqCO2/m2/an)
Contact Loire Investissement
Contacter gratuitement à l'aide du formulaire ci-dessous.