Appartements atypiques de style loft 69003 Lyon 4 pièce(s) 84,55m2 avec 71 M² Terrasse
Lyon 69003
0
(69003) Je vous propose, dans le quartier de Grange-Blanche, quartier calme tout en étant proche du centre-ville et de la Part-Dieu, Appartements atypiques de style loft dans une résidence proche de nombreux restaurants, petits commerces et cafés qui peut vous garantir une vie de quartier agréable. Vous bénéficiez aussi d'un box simple.
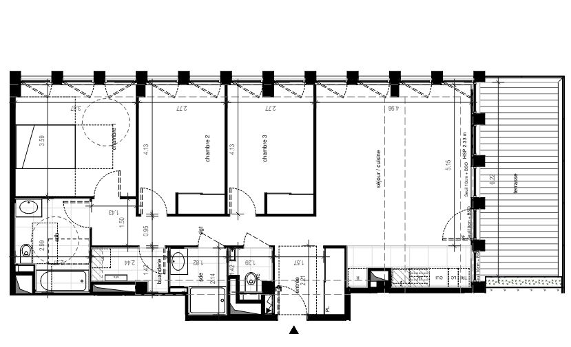
Cet appartement de 84.55 m² comprend, un séjour / cuisine de 31.05 m² conviviale, trois chambres dont deux avec placard, une salle de bain et un WC séparé.
Vous trouverez, également, à l'étage supérieur, une terrasse de 71.20 m²
Tout ceci dans un style contemporain où les matériaux et les équipements ont été choisis pour vous offrir un confort moderne et un chez-soi agréable à vivre.
Produit unique et très rare sur le secteur.
Livraison : Livraison 2ème trimestre 2023.
DPE non requis Lot 124
Prix de vente : 770 000 euros
Mandat réf: 390955
Informations, réservations auprès de votre conseiller commercialisateur Coll Thierry pour ineuf-com au 06 62 37 23 23.
Pour visiter et vous accompagner dans votre projet, contactez Thierry Coll, agissant sous le statut conseiller immobilier indépendant auprès de la SAS Propriétés Privées au
06 62 37 23 23 ou par courriel à t.coll@proprietes-privees.com.
RCS 487 624 777 - Le professionnel vous conseille, garantit et sécurise votre projet immobilier.
Cette présente annonce a été rédigée sous la responsabilité éditoriale de Coll Thierry agissant sous le statut d'agent commercial immatriculé au RSAC BREST 878921915 auprès de la SAS PROPRIETES PRIVEES, Réseau national immobilier, au capital de 40000 euros, 44 ALLÉE DES CINQ CONTINENTS - ZAC LE CHÊNE FERRÉ, 44120 VERTOU, RCS Nantes n° 487 624 777 00040,
Copropriété de 20 lots ().
Charges annuelles : 1000 euros.
84 m²
9 167 €
36 m²
4
3
2
2
2 sur 2
2022
Aménagée
Nord
Oui
Contact Thierry COLL
Contacter gratuitement à l'aide du formulaire ci-dessous.