Appartement T4 Neuf avec Terrasse - Standing Exceptionnel
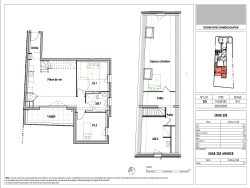
Découvrez ce magnifique appartement T4 neuf, situé au dernier étage d'un immeuble de standing, Livraison prévue début 2027. Avec une surface habitable de 96,25 m², cet appartement allie élégance et fonctionnalité pour offrir un cadre de vie idéal.
Imaginez-vous dans un espace lumineux et spacieux, où chaque pièce a été conçue pour votre confort. Composé de trois chambres, dont une suite parentale, de deux salles d'eau, modernes et équipées, ainsi qu'un WC séparés, complètent parfaitement cet intérieur neuf et raffiné. Profitez d'une terrasse de 10 m², parfaite pour des dîners en plein air ou des moments de détente au soleil. Le chauffage individuel et les ouvertures en aluminium à double vitrage garantissent une température agréable toute l'année.
Les parties communes, tout comme l'intérieur, sont neuves et soignées, reflétant le standing de ce bien exceptionnel. Deux places de stationnement extérieures sont également incluses.
Ne manquez pas cette opportunité de vivre dans un appartement neuf, alliant confort, élégance et emplacement privilégié. Contactez-nous dès maintenant pour une visite !
Dans une copropriété de 14 lots. Aucune procédure n'est en cours. DPE en cours. Les informations sur les risques auxquels ce bien est exposé sont disponibles sur le site Géorisques : georisques.gouv.fr.
Votre conseiller Agence Cardinale : Responsable des Transactions - Bruno CHEL Carte T 56022023000000007 RCP MMA IARD - 171887J
Duplex
96.25 m²
6 504 €
4
3
2
1
2 sur 2
2026
2
1
Oui (14 lots)
Contact Agence Cardinale
Contacter gratuitement à l'aide du formulaire ci-dessous.