Appartements T2 LMNP dans résidence neuve à Labarthe-sur-Lèz
Labarthe-sur-Lèze 31860
0
Honoraires à la charge du vendeur.
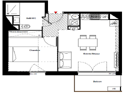
Prix direct promoteur 6 appartements T2 éligibles au statut LMNP Appartements T2 LMNP dans résidence neuve à Labarthe-sur-Lèze Saisissez cette occasion d'investir dans des appartements T2 neufs, éligibles au statut LMNP (Loueur en Meublé Non Professionnel) dans une résidence neuve à Labarthe-sur-Lèze. Ces biens sont parfaits pour un investissement locatif avec une fiscalité avantageuse. Les logements, d'une surface comprise entre 39 m2 et 44 m2, offrent un espace de vie lumineux, une cuisine moderne, un balcon ou une terrasse et un parking. Points forts :
Appartements à partir de 199 900 EUR Surfaces entre 39 m2 et 44 m2 Proximité immédiate des commerces, écoles, et infrastructures culturelles Résidence moderne avec balcon ou terrasse
Appartements disponibles : 6 appartements T2 éligibles de 39 m2 à 44 m2 Contactez-nous dès aujourd'hui pour organiser une visite et obtenir plus d'informations sur le LMNP. Cette annonce vous est proposée par PEYRUC Matthieu - EI - NoRSAC: 521 702 910, Enregistré au Greffe du tribunal de commerce de Toulouse Gestion de Patrimoine & Immobilier - www.thalia-patrimoine.com
39.04 m²
5 120 €
22 m²
2
1
1
2024
Sud
Nord
1
Oui (10 lots)
Contact Maxihome
Contacter gratuitement à l'aide du formulaire ci-dessous.