Les charges de location sont prévisionnelles mensuelles avec régularisation annuelle.
La part des honoraires pour la réalisation de létat des lieux de ce bien est de 170.46 euros.
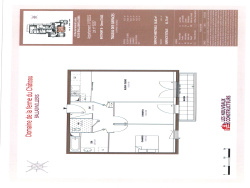
Résidence Standing récente, appartement 3 pièces : coin-cuisine aménagé, Plaques, hotte, séjour, balcon, 2 chambres, salle de bains, rangements 2 Places de Parkings en sous sol,l'une derrière l'autre 990 EUR Chauffage compris Dg : 870 EUR F.A : 738,66 EUR Les informations sur les risques auxquels ce bien est exposé sont disponibles sur le site Géorisques : www.georisques.gouv.fr
56.82 m²
3
2
1
1
2 sur 3
738.66 %
03/02/2026
120 € / mois
2021
1
Oui
2
Oui
Oui
Consommations énergétiques
Logement économe
79
Logement énergivore (kWhEP/m2/an)
Émissions de gaz à effet de serre
Faible émission de GES
16
Forte émission de GES(kgeqCO2/m2/an)
Contact PHILIPPOT
Contacter gratuitement à l'aide du formulaire ci-dessous.