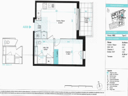
Découvrez un cadre de vie privilégié à Saint-Aubin-d'Aubigné, où se mêlent confort, modernité et accessibilité. Ce nouveau programme immobilier offre des appartements lumineux et bien agencés, pensés pour répondre aux attentes des familles et des jeunes actifs. Profitez d'espaces de vie fonctionnels, d'un environnement paysager et de nombreuses prestations qui sauront séduire les futurs occupants. Le quartier de Saint-Aubin-d'Aubigné est en pleine expansion et bénéficie de toutes les commodités nécessaires au quotidien. À proximité, vous trouverez des commerces, des services de santé, ainsi que des espaces verts propices aux balades en plein air. La convivialité du voisinage est un atout supplémentaire qui contribue à créer un cadre de vie agréable et dynamique. Appartement 2 pièces : séjour / cuisine de 20.36 m2, chambre, salle d'eau avec wc , entrée, terrasse de 7 m2 Parking inclus Livraison du programme pour le dernier trimestre 2027. Les charges de copropriété sont estimés à 84 EUR par mois. Différents T2 sont encore disponibles pour ce programme neuf. Prenez contact avec Instinct Immobilier pour trouver le bien de vos rêves. Les informations sur les risques auxquels ce bien est exposé sont disponibles sur le site Géorisques : www.georisques.gouv.fr
48.93 m²
3 268 €
2
1
1
1
15/12/2027
Est
1
Oui (33 lots)
Contact Instinct Immobilier
Contacter gratuitement à l'aide du formulaire ci-dessous.