APPt T2 de 30,5 m² AVEC ACCÈS DIRECT À LA MER ET PARKING PRIVATIF
La Trinité 97220
0
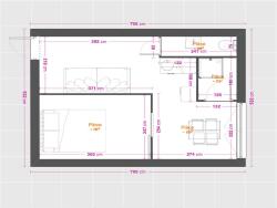
Saisissez l'opportunité d'un investissement hors du commun au coeur de La Trinité ! Ce T2 de 30,5m2 à finir d'aménager vous offre un potentiel inégalé avec son parking interieur privatif , sa situation sur la rue principale de Trinité et surtout sa vue et accès mer. Ce bien stratégique bénéficie donc de deux atouts majeurs : [1] Un parking privatif intérieur sécurisé, un véritable atout pour votre commodité dans le bourg [2] Un accès direct à la mer et une vue imprenable, un emplacement de choix . C'est un investissement à fort potentiel de valorisation et de rendement locatif, en bien locatif meublé ou saisonnier. Profitez de cette opportunité unique pour diversifier votre patrimoine et générer des revenus pérennes. Ne laissez pas passer cette chance ! Contactez moi dès maintenant pour organiser une visite privée et découvrir tout le potentiel de ce bien . Prix de vente 79 000 EUROS charge vendeur. Pour visiter et vous accompagner dans votre projet, contactez Harry HOSPICE, au 0696071010 ou par courriel à h.hospice@proprietes-privees.com Selon l'article L.561.5 du Code Monétaire et Financier, pour l'organisation de la visite, la présentation d'une pièce d'identité vous sera demandée. Cette vente est garantie 12 mois. Cette présente annonce a été réalisée sous la responsabilité éditoriale de Harry HOSPICE agissant sous le statut d'agent commercial auprès de la SAS PROPRIETES PRIVEES, au capital de 40 000 euros, ZAC LE CHÊNE FERRÉ - 44 ALLÉE DES CINQ CONTINENTS 44120 VERTOU ; SIRET 487 624 777 00040, RCS Nantes. Carte professionnelle Transactions sur immeubles et fonds de commerce (T) et Gestion immobilière (G) n° CPI 4401 2016 000 010 388 délivrée par la CCI Nantes - Saint Nazaire. Compte séquestre n°30932508467 BPA SAINT-SEBASTIEN-SUR-LOIRE (44230) ; Garantie GALIAN - 89 rue de la Boétie, 75008 Paris - n°28137 J pour 2 000 000 euros pour T et 120 000 euros pour G. Assurance responsabilité civile professionnelle par MMA Entreprise n° de police 120.137.405 Mandat réf : 354250 - Le professionnel garantit et sécurise votre projet immobilier.nHarry HOSPICE (EI) Agent Commercial - Numéro RSAC : 43410850 .
Copropriété de 5 lots - dont 1 lots habitation.().
Harry HOSPICE (EI) Agent Commercial - Numéro RSAC : 434108510 - .
30 m²
2 633 €
2
1
1 sur 2
Oui
Contact REZOXIMO
Contacter gratuitement à l'aide du formulaire ci-dessous.