Découvrez cette maison pleine de potentiel située à Fumay, idéale pour les amateurs de rénovation et de projets immobiliers.
Caractéristiques de la Maison :
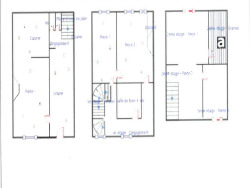
3 Chambres Spacieuses
Séjour
Cuisine
Grand Bureau ou Salon Polyvalent
Salle de Douche
Buanderie
WC Indépendant
Courette à l'Arrière
Grenier
Travaux à Prévoir :
Murs
Réfection des Sols
Rénovation des Plafonds
Traitement de l'Humidité
Révision du Système de Chauffage
Mise à Niveau de l'Électricité
Détails Techniques :
Chauffage Central au Gaz
Double Vitrage au Rez-de-Chaussée
Volets
Prix : 29 000 euros (honoraires charge vendeur)
Cette maison offre une belle opportunité de créer un espace à votre image. Pour plus d'informations ou pour organiser une visite, n'hésitez pas à nous contacter.
DPE vierge , ancienne version.
Côté France Réseau Franco-Belge-International d'agences et d'agents commerciaux.
Théo Gonzales Tel: 07 86 59 60 48
Les informations sur les risques auxquels ce bien est exposé sont disponibles sur le site Géorisques : www.georisques.gouv.fr
La présente annonce immobilière a été rédigée sous la responsabilité éditoriale de Richard Gonzales de la SARL Côté France (sans détention de fonds), titulaire de la carte de démarchage immobilier pour le compte de la société SARL Côté France. Achat vente location à vendre investissement location acheter - Cotefranceimmo.fr
Cette annonce vous est proposée par GONZALES-MARTINEZ Théo - EI - NoRSAC: 990624595, Enregistré à Greffe du tribunal de commerce de Sedan Côté France Immobilier - Réseau Immobilier Franco Belge International - Des conseillers du Nord au Sud de la France et 4 agences à votre service www.cotefranceimmo.fr - Annonce rédigée et publiée par un Agent Mandataire -
120 m²
242 €
28 m²
10 m²
6
3
1
1920
Sud
Contact Théo GONZALES-MARTINEZ
Contacter gratuitement à l'aide du formulaire ci-dessous.