ARGELES-GAZOST, centre ville. Grand appartement T3 loué à l'0
Argelès-Gazost 65400
0
Honoraires à la charge de l'acquéreur (Prix hors honoraires : 180000 euros).
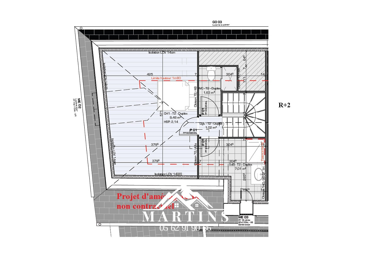
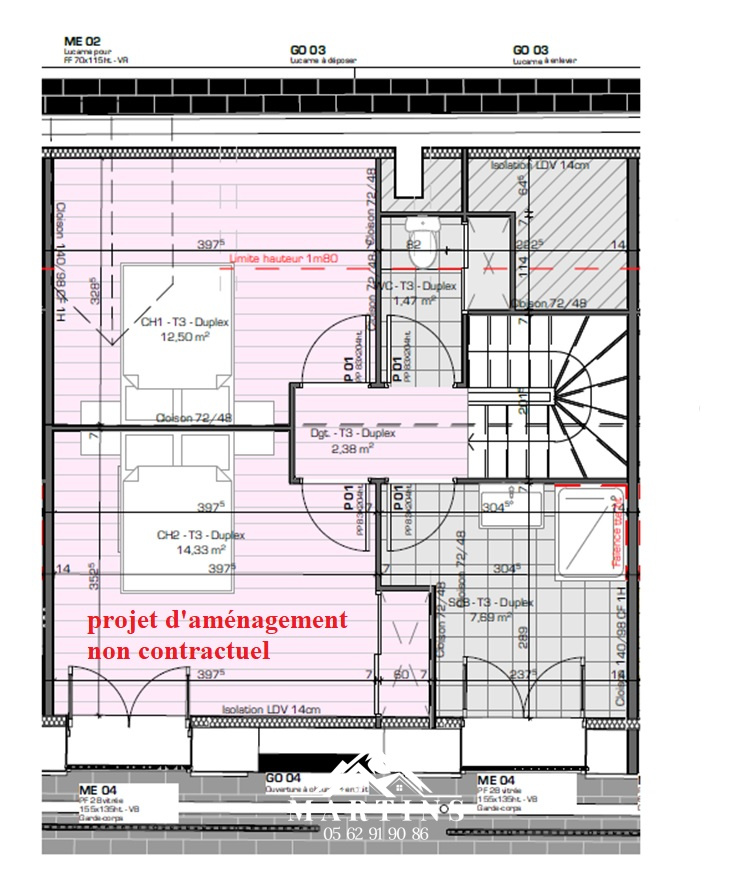
CENTRE VILLE ARGELES-GAZOST, grand et lumineux appartement de type 3 d'une surface de 97m2, actuellement loué à l'année (fin du bail 11 janvier 2027.) Il se situe au 1er étage d'une petite copropriété de 7 lots. En très bon état, il dispose d'une entrée/couloir, une pièce de vie salon/salle à manger avec grande cuisine ouverte, 2 très grandes chambres, une salle d'eau et Wc séparés. Les menuiseries sont en double vitrage, chauffage par convecteurs électriques récents. L'appartement, situé en plein coeur de la ville, lumineux grâce à son exposition EST et grâce à ses beaux volumes et à ses belles hauteurs sous plafonds. Quote-part annuelle de charges de 1.000EUR Taxe foncière 1290 EUR Visites uniquement sur RDV. Les informations sur les risques auxquels ce bien est exposé sont disponibles sur le site Géorisques : www.georisques.gouv.fr
97 m²
1 948 €
21 m²
3
2
1
1
1 sur 2
5.00 %
1900
Est
Oui
Consommations énergétiques
Logement économe
243
Logement énergivore (kWhEP/m2/an)
Émissions de gaz à effet de serre
Faible émission de GES
8
Forte émission de GES(kgeqCO2/m2/an)
Contact EPAGNOUX
Contacter gratuitement à l'aide du formulaire ci-dessous.