Argeles Village - Villa de 120m2 a Achever sur 205 m2 de Te
Argelès-sur-Mer 66700
0
Honoraires à la charge de l'acquéreur (Prix hors honoraires : 150000 euros).
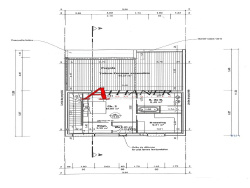
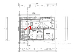
Argeles sur Mer, dans un petit lotissement en impasse, Sur une parcelle de 205m2, maison de Type 4 Pièces d'environ 120m2 au style contemporain à finir de construire suivant un Permis de Construire délivré et accordé par le service de l'urbanisme. La parcelle est située très proche du centre-ville, dans un quartier calme et ensoleillé. Les fondations et l'élévation du vide sanitaire sont déjà réalisés par une entreprise de maçonnerie de renommée. Les taxes d'assainissement et de raccordement sont prises en charge par le vendeur. Estimation des travaux restants = 150 000 EUR environ suivant prestations et finitions Prévoir 12 300 EUR de frais d'acte notarié. Nos bureaux sont en face du centre de lavage Éléphant Bleu de la Zone d'Activité 24, Av des flamants Roses 66700 Argelès sur Mer - 04 68 95 62 84.
Villa
120 m²
1 317 €
42 m²
205 m²
4
3
1
1
5.33 %
Sud
Nord
1
1
2
Contact Athaner Argeles Sur Mer
Contacter gratuitement à l'aide du formulaire ci-dessous.