RÉSIDENCE DE QUALITÉ CALME ABSOLU EXTERIEUR GÉNÉREUX PLAN FONCTIONNEL EMPLACEMENT STRATÉGIQUE
La résidence s'inscrit dans un environnement particulièrement soigné et qualitatif, pensé pour offrir un cadre de vie serein et confortable. Ici, le calme est un véritable atout, tout en bénéficiant d'un emplacement stratégique. Le quartier profite d'une excellente dynamique avec de nombreux commerces et complexes à proximité, ainsi qu'un accès rapide aux écoles et universités. Le centre de Bordeaux, les quais et les espaces verts environnants sont facilement accessibles, tout comme le tramway, permettant de conjuguer tranquillité résidentielle et mobilité optimale au quotidien.
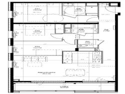
L'appartement séduit par son plan équilibré et fonctionnel. La pièce de vie avec cuisine ouverte développe environ 35 m², offrant un espace convivial et lumineux, idéal pour recevoir et partager des moments en famille ou entre amis. Elle se prolonge par un agréable exterieur de plus de 10 m², parfaitement dimensionné pour y installer une table et profiter pleinement des repas en extérieur.L'espace nuit se compose de trois chambres confortables, dont une chambre principale de plus de 15 m², ainsi que deux chambres supplémentaires bien proportionnées. Une salle de bain, une salle d'eau, un WC indépendant et des dégagements intelligemment pensés viennent compléter l'ensemble. Un appartement agréable à vivre, alliant calme, confort et qualité des espaces, au sein d'une résidence recherchée.
Une place de parking couverte et sécurisée complète ce bien en SUS.
- Frais de notaire REDUITS - Normes - Garanties - Exonération de Taxe Foncière - Très bientôt Disponible - ...
RÉSIDENCE DE QUALITÉ CALME ABSOLU EXTERIEUR GÉNÉREUX PLAN FONCTIONNEL EMPLACEMENT STRATÉGIQUE
Honoraires à la charge du vendeur. Dans une copropriété de 126 lots. Aucune procédure n'est en cours. DPE en cours. Les informations sur les risques auxquels ce bien est exposé sont disponibles sur le site Géorisques : georisques.gouv.fr.