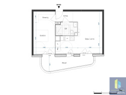
ARTIGUES près BORDEAUX votre T2 - Dans une résidence nouvelle proche de la place du marché et de l'école primaire, investissez dans ce confortable appartement T2 de 54 m2 habitables (CARREZ 44.50 m2 plus balcon terrasse de 9.50 m2) orienté Sud-Ouest). Une entrée, un séjoour avec cuisne aménagée et équipée, une chambre avec un dressing, salle d'eau complète. Une place de parking en sous-sol. Parfait pour votre 'premier chez-vous' ou réaliser un excellent investissement locatif, constituer votre patrimoine foncier en vue de la retraite... Réservez vite, conditions très favorables jusqu'au 31 décembre: frais de notaire offerts. APPELEZ IMMOBILIA FPI Bordeaux Ornano au 05 56 28 43 70 et 06 63 47 14 01. Les informations sur les risques auxquels ce bien est exposé sont disponibles sur le site Géorisques : www.georisques.gouv.fr
54 m²
3 889 €
23 m²
2
1
1
1
1 sur 2
90 € / mois
2025
Sud
Ouest
1
Oui
1
Oui (43 lots)
Consommations énergétiques
Logement économe
58
Logement énergivore (kWhEP/m2/an)
Émissions de gaz à effet de serre
Faible émission de GES
2
Forte émission de GES(kgeqCO2/m2/an)
Contact France Patrimoine Et Investissements
Contacter gratuitement à l'aide du formulaire ci-dessous.