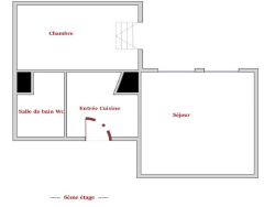
Situé rue de la Boétie, dans le 8ème arrondissement de Paris, l'appartement bénéficie d'un emplacement premium à proximité immédiate des Champs-Élysées, des commerces, restaurants et transports. Un secteur recherché, dynamique et central. La copropriété est de belle facture, bien entretenue et sécurisée, avec des parties communes soignées. L'ascenseur dessert les étages jusqu'au 5ème, offrant un confort appréciable au quotidien. Au dernier étage, ce 2 pièces de 36,51m2 CARREZ (48,62m2 au sol) lumineux dispose d'une climatisation et d'une vue dégagée sur les toits de Paris. Des travaux de rafraîchissement sont à prévoir.
DPE D.
Un bien offrant un beau potentiel, idéal pied-à-terre ou investissement.
40.51 m²
10 392 €
2
1
6 sur 6
1912
Oui
Oui
Consommations énergétiques
Logement économe
236
Logement énergivore (kWhEP/m2/an)
Émissions de gaz à effet de serre
Faible émission de GES
24
Forte émission de GES(kgeqCO2/m2/an)
Contact MALANDIN
Contacter gratuitement à l'aide du formulaire ci-dessous.