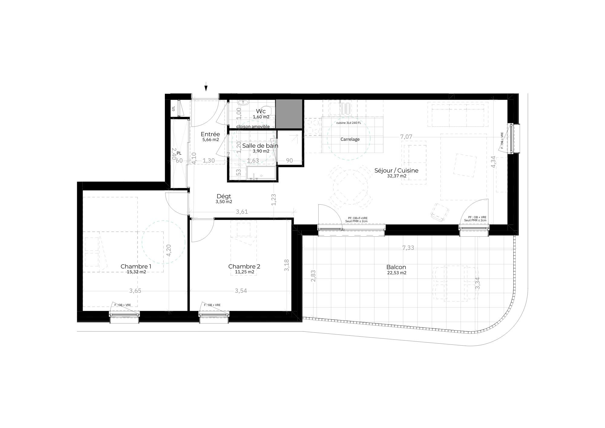
Magnifique ATTIQUE 4 pièces de 95 m2 avec terrasse de 58 m2 Situé au dernier étage d'une résidence intimiste, ce superbe appartement 4 pièces de 95 m2 vous séduira par ses volumes, sa luminosité et son extérieur exceptionnel. Chaque pièce ouvre sur une vaste terrasse de 58 m2 exposée plein ciel, offrant une vue dégagée et un espace de vie extérieur rare. Il se compose :
D'un grand séjour lumineux
De trois chambres confortables dont une suite parentale avec sa salle de douche
D'une salle de bains
De toilette séparée
Un garage en sous-sol complète ce bien. Confort garanti toute l'année grâce aux dernières normes énergétiques (RE 2020). L'agence EFCO Immo se fera un plaisir de vous faire visiter ce bien.
95 m²
4 095 €
38 m²
4
3
1
1
1
3 sur 3
1
1
Oui
Consommations énergétiques
Logement économe
75
Logement énergivore (kWhEP/m2/an)
Émissions de gaz à effet de serre
Faible émission de GES
11
Forte émission de GES(kgeqCO2/m2/an)
Contact
Contacter gratuitement à l'aide du formulaire ci-dessous.