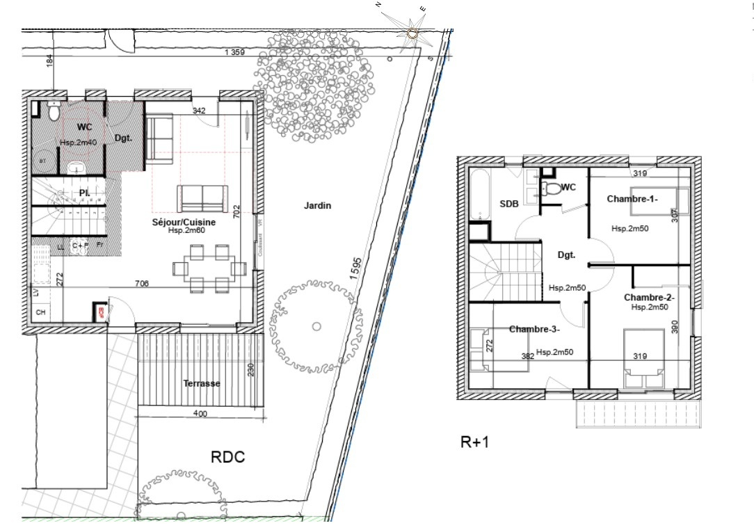
? Nouveauté à la vente Secteur des Mollières à L'Arbresle Venez découvrir cette charmante maison idéalement située au calme, offrant une surface de 97 m² parfaitement optimisée. Elle se compose d'une belle pièce de vie lumineuse regroupant salon, salle à manger et cuisine ouverte, idéale pour des moments conviviaux en famille. À l'étage, vous trouverez une salle de bains ainsi que 4 chambres, dont une suite parentale avec sa propre salle d'eau. Un garage vient compléter ce bien, offrant un espace de stationnement sécurisé ainsi que du rangement supplémentaire, avec la possibilité d'aménager un espace atelier selon vos besoins. La maison est équipée d'un chauffage au gaz de ville, assurant confort et efficacité au quotidien. Côté extérieur, vous profiterez d'un agréable terrain plat de 366 m² entièrement clôturé, bien exposé et sans vis à vis, parfait pour les moments de détente, les repas en extérieur ou les jeux en famille. ? À découvrir sans tarder !
Honoraires à la charge du vendeur. Classe énergie D, Classe climat D Montant moyen estimé des dépenses annuelles d'énergie pour un usage standard, établi à partir des prix de l'énergie de l'année 2021 : entre 1517.00 et 2053.00 . Les informations sur les risques auxquels ce bien est exposé sont disponibles sur le site Géorisques : georisques.gouv.fr.