Au coeur de la vieille ville d'Annecy, plateau à rénover en T3
Annecy 74000
0
A SAISIR , PLATEAU DE 55m² A RÉNOVER RUE CARNOT
Au coeur de la vielle d'Annecy, 03 rue Carnot, logement d'une surface utile d'environ 55 m², est actuellement vide et curé, à réhabiliter entièrement.
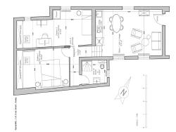
Hauteur sous plafond comprise entre 2,40 m et 2,67 m, favorable à une rénovation de qualité.
Implantation permettant aisément une reconfiguration en T3 (2 chambres + séjour/cuisine).
Ouvertures sur rue et sur cour, offrant une bonne luminosité et un potentiel traversant après redistribution des volumes.
L'ensemble présente un fort potentiel locatif ou de revente après rénovation, compte tenu de sa localisation centrale et de la flexibilité d'aménagement.
Possibilité de réaliser une rénovation clef en main par une entreprise certifiée. Devis à la demande.
Points positifs :
Logement déjà curé, facilitant le démarrage des travaux
Transformation possible en 2 ou 3 pièces
Points à noter :
Absence de parking, ascenseur, cave ou local à vélos
Prix : 265 000 euros
Frais d'agence à la charge du vendeur
DPE non défini (plateaux bruts)
Charges de copropriété : 55 euros par mois
Nb de lot de copropriété : 27
Chauffage individuel
Pour visiter et vous accompagner dans votre projet contactez Sébastien Gianadda par courriel à s.gianadda@proprietes-privees.com. Cette présente annonce a été rédigée sous la responsabilité éditoriale de Sébastien Gianadda agissant sous le statut d'agent commercial immatriculé au RSAC ANNECY 824 000 897 auprès de la SAS PROPRIETES PRIVEES, Réseau national immobilier, au capital de 40000 euros, 44 allées des cinq continents 44120 VERTOU, RCS Nantes n° 497 624 777 00040, Carte professionnelle T et G n°CPI 4401 2016 000 010 388 CCI Nantes-Saint Nazaire. Garantie GALIAN -89 rue de la Boétie, 75008 paris. Mandat GIN431999
Copropriété de 27 lots - dont 20 lots habitation. ().
Charges annuelles : 660 euros.
Sébastien GIANADDA (EI) Agent Commercial - Numéro RSAC : ANNECY 824 000 897 - .
55 m²
4 818 €
3
2
3 sur 3
Oui
Contact Sébastien GIANADDA
Contacter gratuitement à l'aide du formulaire ci-dessous.