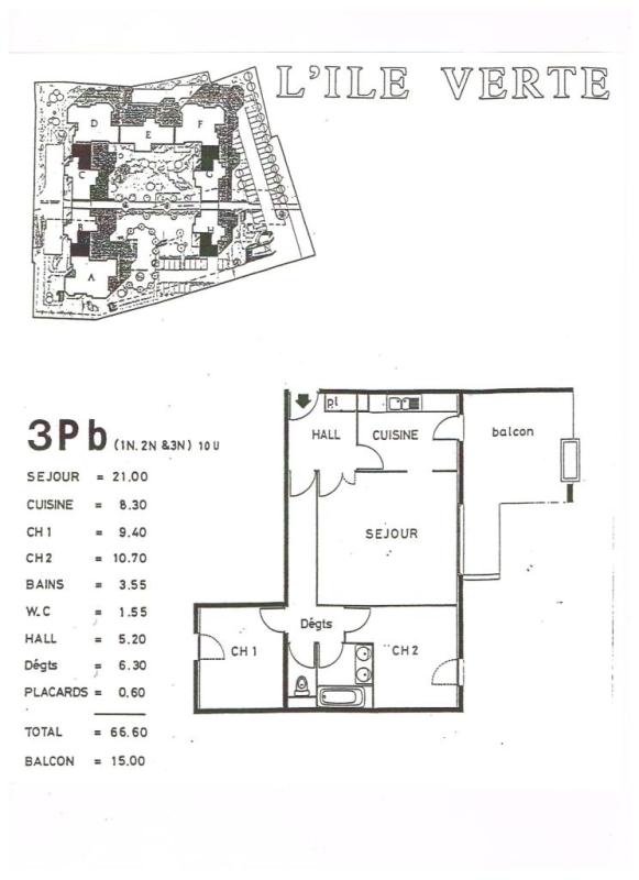
Fiche Id-UBW26847g : location Montpellier, secteur Celleneuve, T4 d'environ 87.10 m2 comprenant 4 piece(s) dont 3 chambre(s) + Terrasse de 8 m2 - - Equipements annexes : - chauffage : Electrique - A louer 1 255 Euros c.c./mois dont Charges copro. : 135 Euros/mois - Classe-Energie C : 176 kWh.m2.an - Plus d'informations disponibles sur demande...- Mentions légales : Loyer CC (Charges comprises) = 1255 Euros/mois dont Charges de copropriétés = 135 Euros/mois - Modalités de règlement des charges : Prévisionnelles mensuelles avec régularisation annuelle - Honoraires à la charge du locataire : 958 Euros - Dépot de garantie : 1120 Euros - Classe-Energie C : 176 kWh.m2.an - Montant estimé des dépenses annuelles d'énergie pour un usage standard compris entre 1200 et 1680 Euros - Affaire suivie par Mme Andr?a BOILEAU (Conseiller immobilier salarié) - Reseau Immo-Diffusion Castelnau Le Lez - Pour plus d'informations, contactez notre secrétariat au 09 74 53 13 81 (Appel gratuit ou prix d'une communication locale)
87 m²
4
3
Oui
Oui
Consommations énergétiques
Logement économe
176
Logement énergivore (kWhEP/m2/an)
Émissions de gaz à effet de serre
Faible émission de GES
5
Forte émission de GES(kgeqCO2/m2/an)
Contact IMMO DIFFUSION
Contacter gratuitement à l'aide du formulaire ci-dessous.