À quelques minutes de Bordeaux, cette résidence à taille humaine avec ascenseur profite d'une excellente desserte grâce au tramway A et aux grands axes routiers, facilitant ainsi les déplacements quotidiens. À proximité immédiate, commerces, restaurants et services essentiels offrent un confort de vie appréciable, tandis que les établissements scolaires et infrastructures sportives en font un secteur recherché par les familles. Mérignac séduit également par ses nombreux espaces verts, tels que le Parc de Bourran, propice aux promenades et aux activités de plein air. L'aéroport, accessible en quelques minutes, constitue un atout supplémentaire pour les voyageurs fréquents. Alliant accessibilité, sérénité et qualité de vie, cet emplacement constitue un cadre parfait pour profiter pleinement du confort de cet appartement d'exception.
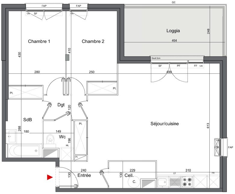
Cet appartement situé au premier étage offre un cadre de vie confortable grâce à son agencement optimisé et ses prestations modernes. Avec une surface habitable de 65 m2, il se compose d'une pièce de vie lumineuse de 31 m2, prolongée par une terrasse de 11 m2, idéal pour profiter de l'extérieur. La cuisine ouverte, intégrée au séjour, est complétée par un cellier fonctionnel. L'appartement dispose de deux chambres, d'une salle de bain, ainsi que d'un WC indépendant. Grâce à sa hauteur sous plafond de 2,50 m et sa distribution harmonieuse, cet appartement allie confort, modernité et praticité, offrant un cadre de vie idéal pour un couple ou une petite famille.
Deux parkings en SUS obligatoire complètent le bien (25 000).
- Frais de Notaire réduits - Garanties - RT 2012 - Exonération de taxe Foncière - Ascenseur - ...
PRESTATIONS - CONFORT - VOLUMES - EMPLACEMENT
Honoraires à la charge du vendeur. Dans une copropriété de 29 lots. Aucune procédure n'est en cours. DPE en cours. Les informations sur les risques auxquels ce bien est exposé sont disponibles sur le site Géorisques : georisques.gouv.fr.
66 m²
4 318 €
31 m²
3
2
1
1 (séparé)
1 sur 3
79.00 € / mois
2025
Oui
2
Oui
1
Oui
Oui
Oui
Oui (29 lots)
Contact Jean-Guillaume ROCHE
Contacter gratuitement à l'aide du formulaire ci-dessous.