À Mérignac, dans un cadre résidentiel alliant modernité et nature, ce ravissant duplex de 3 pièces d'environ 70 m² offre des espaces bien agencés et une ambiance chaleureuse. Au sein d'une résidence contemporaine soigneusement paysagée, il bénéficie d'un environnement verdoyant et de prestations de qualité. Sa situation idéale, à proximité immédiate des commerces, des écoles et des transports en commun (tram A et lignes de bus), facilite la vie quotidienne et les déplacements.
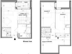
Au premier niveau, une agréable pièce de vie avec cuisine ouverte offre un espace convivial, parfaitement prolongé par une loggia intimiste, idéale pour savourer un café matinal ou une pause au calme. Une salle d'eau moderne avec WC complète ce niveau. À l'étage, deux chambres confortables offrent un véritable cocon de repos. Un vaste espace modulable de plus de 15 m² vient enrichir le tout, à aménager selon vos envies : bureau, dressing sur mesure ou salle de jeux... à vous d'imaginer votre cadre de vie idéal.
Un bien moderne, fonctionnel et évolutif, pensé pour répondre aux besoins d'aujourd'hui et aux envies de demain.
Deux places de parking sécurisées complètent ce bien en sus (15 000).
- Aucun travaux à prévoir - Ascenseur - Frais de Notaires Réduits - Garanties - RT 2012 - Disponible - ...
VOTRE COCON VERDOYANT A DEUX PAS DU TRAM
Honoraires à la charge du vendeur. Dans une copropriété de 47 lots. Aucune procédure n'est en cours. DPE en cours. Les informations sur les risques auxquels ce bien est exposé sont disponibles sur le site Géorisques : georisques.gouv.fr.