Honoraires à la charge de l'acquéreur (Prix hors honoraires : 0 euros).
Les charges de location sont prévisionnelles mensuelles avec régularisation annuelle.
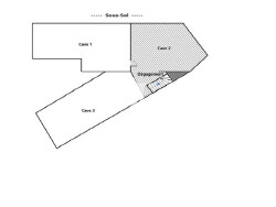
ISAMBERT ECI vous propose en exclusivité la location de ce local au sein d'une monopropriété d'une surface totale de 180 m² localisée Avenue du Général Leclerc, dans un environnement animé et commerçant. Au rez-de-chaussée, une surface de 110 m² en plain pied. Au sous-sol, une surface de 70m². Les caractéristiques du bien : toutes activités.
Honoraires de 13 680 à la charge du locataire. Provision sur charges 266,66 /mois, régularisation annuelle. Dépôt de garantie 11 400 . DPE vierge. Les informations sur les risques auxquels ce bien est exposé sont disponibles sur le site Géorisques : georisques.gouv.fr.
180 m²
13680 %
20/01/2025
266.66 € / mois
1900
Contact Alexandre VERRECCHIA
Contacter gratuitement à l'aide du formulaire ci-dessous.