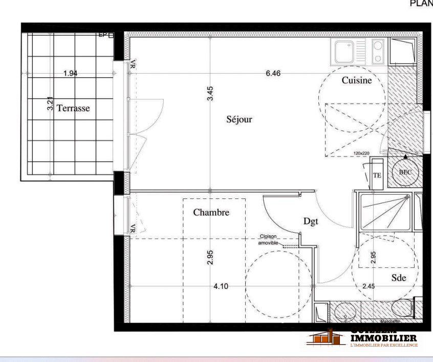
Avignon Appartement -T2- 60 m² (38 m² Loi Carrez)avec parking
Avignon 84000
0
Honoraires à la charge du vendeur.
AVIGNON I.M. dans le quartier ouest recherché, situé au troisième et dernier étage d un hôtel particulier restauré sous loi Malraux, ce bien rare de 60 m² au sol (38,53 m² Carrez) séduit par son cachet et son authenticité. Volumes ouverts, belles poutres anciennes, sols en parefeuille : le charme opère dès l entrée. L espace offre une atmosphère chaleureuse de caractère idéale en pied-à-terre ou résidence principale. Vous bénéficiez d un jardin commun arboré, véritable havre de paix en coeur de ville, ainsi que d un emplacement de stationnement privé ! un luxe à Avignon. Un lieu chargé d histoire, pour les amoureux de caractère et de tranquillité. Vendu meublé car possibilité de faire de la location saisonnière. Géorisques Les informations sur les risques auxquels ce bien est exposé sont disponibles sur le site Géorisques https://www.georisques.gouv.fr Natalie DRUTEL (EI) Agent Commercial - Numéro RSAC : - .