Avignon intra-muros appartement 3 pièces 93 m² avec cour
Avignon 84000
0
Vaucluse - 84000 Avignon - 98 000 Euros -
Laurent Zerbib, vous propose cet appartement à rénover entièrement, situé en rez-de-chaussée d'une petite copropriété, au coeur de l'intra-muros, avec une surface habitable de 93 m² et une cour privative de 10 m² , ce bien offre un beau potentiel.
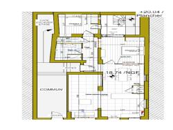
Un permis de construire déjà accepté prévoit un aménagement optimisé comprenant deux chambres, un salon-séjour lumineux, une cuisine à aménager, un cellier, une salle de bain et WC indépendant. L'ensemble des travaux a été évalué à 50 000 euros , et les futurs acquéreurs bénéficient d'un projet clé en main avec les plans inclus .
Pour faciliter la rénovation, une mise en relation avec des artisans qualifiés peut être proposée, ainsi que la fourniture de devis détaillés , vous assurant une vision claire des travaux à réaliser.
Situé dans un quartier recherché, proche des commerces, des écoles et des transports, cet appartement est idéal pour un investissement locatif ou pour un premier achat désireux de personnaliser son futur chez-soi.
Prix: 98 000 Euros honoraires à la charge du vendeur.
Pour visiter et vous accompagner dans votre projet contactez Laurent ZERBIB au 06 10 79 95 27 ou par courriel à l.zerbib@proprietes-privees.com.
Cette présente annonce a été rédigée sous la responsabilité éditoriale de Laurent ZERBIB agissant sous le statut d'agent commercial immatriculé au RSAC de Nîmes n° 434067575.
Mandat réf : 396949 - Le professionnel garantit et sécurise votre projet immobilier.
SAS PROPRIETES PRIVEES - ZAC du chêne ferré - 44 allée des cinq continents 44120 VERTOU, Carte professionnelle CPI 4401 2016 000 010 388 CCI
Nantes-Saint Nazaire. RCS NANTES 487 624 777
Copropriété de 5 lots ().
Charges annuelles : 1181 euros.
Laurent ZERBIB (EI) Agent Commercial - Numéro RSAC : Nîmes 434 067 575 - .
Les informations sur les risques auxquels ce bien est exposé sont disponibles sur le site Géorisques : www. georisques. gouv. fr
93 m²
1 054 €
3
2
1
Oui
Contact Laurent Zerbib
Contacter gratuitement à l'aide du formulaire ci-dessous.