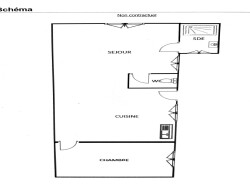
Sous compromis : VIEIL AVON - Maison de type F2 de 42m² entièrement rénovée avec climatisation réversible, avec un bûcher de 6m², une place de parking privative et un grenier de 16m². . DPE en C. . IDEAL PROFESSION LIBERALE car possibilité de réouvrir une ancienne porte côté rue pour recevoir du public. . Maison de plein pied de 42m² disposant d'un salon lumineux de 16,23 m²orienté Sud Est, d'une cuisine aménagée et équipée de 13.84m², d'une chambre de 9m², d'une salle d'eau, et d'un wc indépendant.. . Double vitrage, Pompe à chaleur (climatisation/chauffage réversible), électricité aux normes et DPE en C. Electricité aux normes. . Un grenier de 16m² et un bucher de 6m², ainsi qu'une place de parking privative complètent ce bien. . Cette maison est en copropriété avec de faibles charges de 44 par mois soit 530 par an. .
Honoraires à la charge du vendeur. Dans une copropriété de 11 lots. Quote-part moyenne du budget prévisionnel 530 /an. Aucune procédure n'est en cours. Classe énergie C, Classe climat A Montant estimé des dépenses annuelles d'énergie pour un usage standard : entre 610.00 et 890.00 sur les années 2021, 2022 et 2023 (abonnements compris). Les informations sur les risques auxquels ce bien est exposé sont disponibles sur le site Géorisques : georisques.gouv.fr.
Maison ancienne
42 m²
4 738 €
16 m²
2
1
1
1 (séparé)
44.00 € / mois
1948
1
Oui (11 lots)
Consommations énergétiques
Logement économe
170
Logement énergivore (kWhEP/m2/an)
Émissions de gaz à effet de serre
Faible émission de GES
5
Forte émission de GES(kgeqCO2/m2/an)
Contact DLV Immo
Contacter gratuitement à l'aide du formulaire ci-dessous.