BAGNOLET 93170 La Capsulerie Terrain constructible à vendre
Bagnolet 93170
0
Honoraires à la charge du vendeur.
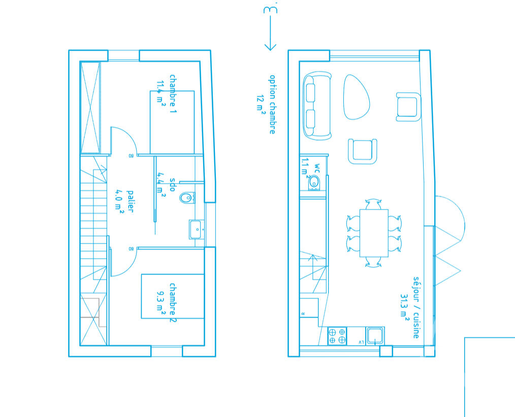
Le Cabinet CHAUVET & Cie vous propose secteur 'La Capsulerie' proche de toutes commodités et à 5min du Métro Gallieni, un terrain constructible d'environ 105m². Création possible d'une Maison en rez-de-chaussée plus un étage et combles, de maximum 150m² de surface de plancher avec jardin et parking. A VOIR !
104 m²
2 644 €
Contact Nicolas VIEIRA
Contacter gratuitement à l'aide du formulaire ci-dessous.