Bandol- Escourche: Terrain à bâtir purgé de tout recours
Bandol 83150
0
Honoraires à la charge du vendeur.
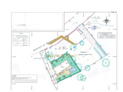
Terrain constructible de 396 m² à Bandol (83150), prêt à accueillir votre projet de maison de 118 m². Viabilisé et piscinable, il dispose d'un permis de construire. À proximité, vous trouverez des transports, crèche, écoles et restaurants. Contactez-nous pour découvrir ce lieu idéal pour écrire votre nouvelle histoire.
Bus : 3 à 10 min à pied Crèche, école élémentaire : 1 à 5 min en voiture École maternelle, collège : 1 à 5 min à pied/en voiture Restaurants : 5 à 15 min à pied
Honoraires à la charge du vendeur. Les informations sur les risques auxquels ce bien est exposé sont disponibles sur le site Géorisques : georisques.gouv.fr.
396 m²
934 €
396 m²
Oui
Contact MILIE
Contacter gratuitement à l'aide du formulaire ci-dessous.