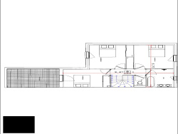
BARBAZAN-DEBAT, à proximité immédiate de Tarbes, découvrez cette maison T4 de 98,98 m2, actuellement en construction, située dans un nouveau lotissement calme, proche du centre et de toutes les commodités : commerces, écoles, nombreuses associations sportives et pôle médical. Cette maison à étage offre, au rez-de-chaussée, une cuisine ouverte sur un salon-séjour lumineux donnant accès à la terrasse, une salle d'eau avec WC et d'un cellier. Vous bénéficierez également d'un garage, d'un jardin privatif de 73 m2. À l'étage, vous trouverez trois chambres avec placards, une salle de bain équipée d'un sèche-serviettes, un WC indépendant et une terrasse. La maison est dotée d'une pompe à chaleur et de panneaux rayonnants pour un meilleur confort. Livraison prévue pour décembre 2026. N'hésitez pas à me contacter au 06 64 83 54 22 ou par mail catherinepalacios@regm.immo pour avoir plus de renseignements. Ce bien vous est présenté par Catherine Palacios EI - Réseau REGM - Annonce rédigée et publiée par un Agent Mandataire -
98.98 m²
2 314 €
43 m²
4
3
2
2
2026
Est
1
1
Oui
2
Oui (11 lots)
Contact PALACIOS CATHERINE
Contacter gratuitement à l'aide du formulaire ci-dessous.