Bas de Villa à Vendre Rénovation Complète 4 ème Trimestre
Pertuis 84120
0
Votre agence immobilière Ostium vous propose à la vente un charmant bas de villa sans vis-à-vis, situé dans un ensemble immobilier de 2 lots, en fond d'impasse sécurisé par un portail, et entièrement rénové (livraison prévue au 4 ème trimestre 2025).
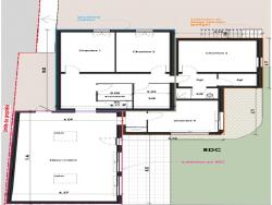
Ce bien spacieux se compose de :
Une entrée accueillante ouvrant sur un vaste séjour lumineux avec cuisine ouverte et salle à mange
Un grand dégagement pouvant être aménagé en coin lecture ou espace bureau
Quatre belles chambres
Une salle d'eau avec WC
Un WC séparé
Une salle de bains
Une buanderie
Vous bénéficierez également d'un jardin privatif et de deux places de stationnement privatives.
Le logement sera livré sans aucun travaux à prévoir, à l'exception de l'aménagement de la cuisine.
Il offrira tout le confort moderne grâce à une climatisation réversible et un chauffe-eau thermodynamique.
Situé dans un secteur calme, agréable et sans vis-à-vis, à proximité immédiate des commerces et des commodités.
Notice descriptive disponible sur demande. Un bien rare à visiter sans tarder !
Contact : Sébastien KERGUENTéléphone : 06.98.56.38.27RSAC Aix-en-Provence no 539 332 221*
160 m²
2 531 €
70 m²
6
4
1
1
2
1990
Sud
Est
Contact KERGUEN SEBASTIEN
Contacter gratuitement à l'aide du formulaire ci-dessous.