Honoraires à la charge de l'acquéreur (Prix hors honoraires : 0 euros).
Les charges de location sont prévisionnelles mensuelles avec régularisation annuelle.
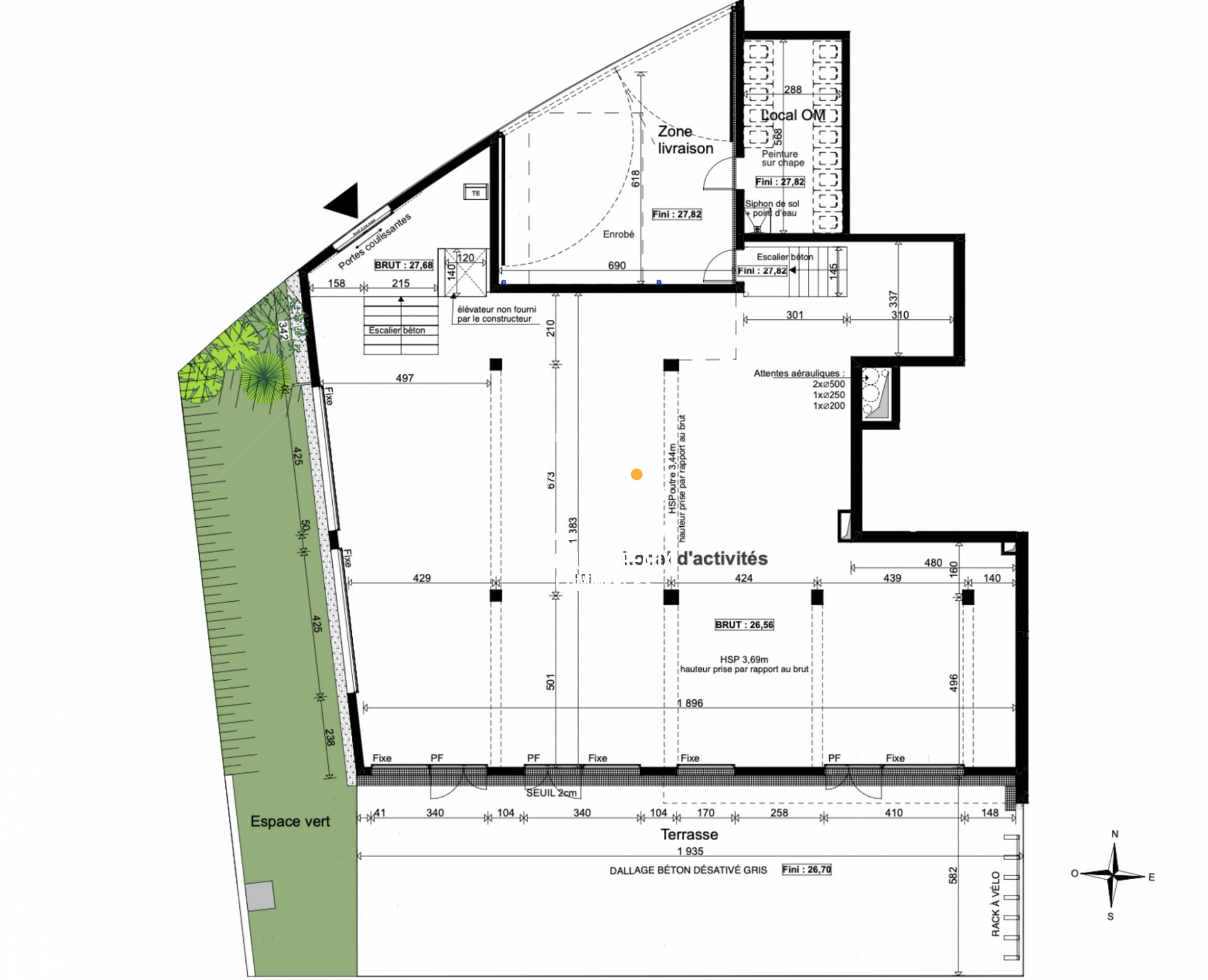
Situé à l'entrée d'un village d'entreprises de 20 lots, local d'activité neuf de 336,20 m² offrant un cadre idéal pour diverses activités professionnelles et une belle visibilité sur la route de Clisson. Sur deux niveaux, il se compose d'un vaste rez-de-chaussée de 261,20 m², dont 25 m² déjà aménagés (sanitaires, douche), avec une porte sectionnelle de 3m x 3m et une porte piétonne à l'arrière. Grâce à ses fenêtres hautes et ses portes en aluminium, l'espace bénéficie d'une luminosité naturelle optimale. La mezzanine de 75 m² aménagée en open space vient compléter ce bien, offrant une surface supplémentaire fonctionnelle. À l'extérieur, le local dispose de 9 places de stationnement sur un site sécurisé, avec des clôtures et un portail coulissant. Ce bien, parfaitement adapté à des entreprises en quête d'un espace moderne et fonctionnel, bénéficie d'une situation géographique stratégique et d'une accessibilité facilitée. Disponibilité immédiate. Conditions de Location : Loyer mensuel HT HC : 3 750 Provision sur charges mensuelles HT : 280 Dépôt de garantie : 3 mois de loyer HT HC Honoraires de commercialisation 25% HT du loyer annuel HT/HC + Frais de rédaction de bail notarié et état des lieux par un commissaire de justice à la charge du preneur. Pour toutes informations complémentaires contactez l'agence au 02 55 07 86 35.
Honoraires de 11 250 à la charge du locataire. Provision sur charges 280 HT/mois, régularisation annuelle. Dépôt de garantie 11 250 . Non soumis au DPE. Les informations sur les risques auxquels ce bien est exposé sont disponibles sur le site Géorisques : georisques.gouv.fr. . LOCAUX-BUREAUX-COMMERCES 02 55 07 86 35
Local d'activités
336.2 m²
11250 %
280.00 € / mois
2024
9
Contact Sonia BERNOVILLE
Contacter gratuitement à l'aide du formulaire ci-dessous.