Honoraires à la charge de l'acquéreur (Prix hors honoraires : 301291 euros).
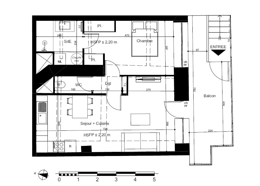
Découvrez une opportunité unique d'investir dans un projet de réhabilitation en Déficit Foncier, situé en plein coeur du quartier prisé de Saint-Barnabé. Ce programme propose 7 logements répartis entre 2 T3 et 5 T2, chacun bénéficiant d'un extérieur privatif, qu'il s'agisse d'un balcon ou d'une terrasse. Une place de stationnement est également attribuée à chaque lot, offrant un confort de vie supplémentaire.
Idéalement situé, ce projet se trouve à proximité immédiate des commerces, des écoles et des transports en commun, assurant une qualité de vie optimale pour les futurs occupants. Avec 60 % de quote-part travaux, il constitue une excellente occasion d'allier avantage fiscal et valorisation patrimoniale.
Vous bénéficiez en outre d'une assurance dommages-ouvrages, d'une garantie de bonne exécution et d'une garantie fiscale, pour un investissement en toute sérénité.
Nos agents de recherche vous fourniront un suivi complet tout le long de votre projet : du montage de votre dossier à la remise des clés, nos conseillers sont à votre écoute. Bénéficiez de l'accompagnement d'un courtier en immobilier sans charges ajoutées.
www.guilde-patrimoine.fr 04.13.42.21.46
41 m²
7 349 €
4 m²
24 m²
2
1
1
1
2 sur 2
1 (4 m²)
1
Oui (7 lots)
Contact La Guilde Du Patrimoine
Contacter gratuitement à l'aide du formulaire ci-dessous.