Au coeur de la commune de Thônes, nous vous proposons à la vente un bâtiment d'activité de grande envergure, développant une surface totale d'environ 5 245 m².
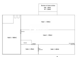
Possibilité de division avec une surface d'environ 4 185 m² (vente hors halle 5), ou plus petit à étudier (VOIR PLAN EN PHOTOS).
L'ensemble immobilier sera libre de toute occupation au moment de la vente, offrant ainsi une grande flexibilité d'exploitation pour l'acquéreur.
Situé à Thônes, cet actif bénéficie d'un positionnement particulièrement recherché sur le bassin des Aravis. Ce secteur constitue un véritable carrefour économique local, à la croisée : - des flux entre Annecy et les stations des Aravis (Manigod, La Clusaz, Le Grand-Bornand), - d'un tissu dynamique mêlant artisanat, industrie et logistique, - d'une zone à forte attractivité pour les entreprises en quête de surfaces fonctionnelles.
Sur Thônes et ses environs immédiats, les disponibilités en immobilier d'activité de cette taille sont extrêmement limitées. Cet actif représente donc une opportunité unique pour : - implanter une activité nécessitant de grands volumes, - regrouper plusieurs unités sur un même site, - ou sécuriser un foncier stratégique dans une zone à forte tension.
Le site profite d'une bonne accessibilité routière, facilitant les flux logistiques et les déplacements des collaborateurs, tout en restant à proximité immédiate des grands axes du territoire.
CARACTÉRISTIQUES PRINCIPALES : - Surface totale : environ 5 245 m² - Possibilité d'acquisition partielle : environ 4 185 m², ou moins après étude - Bâtiment composé de plusieurs halles + bureaux et locaux sociaux - Site adapté aux activités artisanales, industrielles ou logistiques - Bien vendu libre de toute occupation
Conformément au PLUi en vigueur, les activités commerciales ou de services recevant du public particulier ne sont pas autorisées. Le bien est donc destiné à des activités professionnelles de type artisanat, production, stockage ou logistique.
Prix de vente de l'entièreté du site de 5 245m² : 4 200 000 HT. Prix de vente de l'entièreté du site sauf Halle 5 (4 185m²) : 3 260 000 HT.
Pour d'autres hypothèses de vente partielle : nous contacter.
AVINIM RESEAU BROKERS est le premier cabinet immobilier d'entreprise structuré en réseau de mandataires. Nous maillons avec notre équipe de 80 Brokers une grande partie du territoire national pour accompagner nos entreprises clientes dans leurs recherches de commerces, bureaux, locaux d'activités, immeubles et fonciers. www.reseau-brokers.com
Honoraires à la charge du vendeur. DPE en cours. Les informations sur les risques auxquels ce bien est exposé sont disponibles sur le site Géorisques : georisques.gouv.fr.