Vous recherchez un site pour installer votre activité dans la région de Riom, celui-ci est fait pour vous :
Situé en Zac de Layat, à la sortie nord de Riom, il est très facile d'accès (double accès VL et PL) à 5 minutes du péage de Riom sur l'A 71.
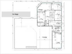
Le bâtiment, de 2012, est découpé en 2 zones qui communiquent : - une zone de bureaux de 170 m² répartis sur 2 niveaux avec sanitaires au rdc et à l'étage - une partie dédiée à l'activité et au stockage : 225 m² d'entrepôt avec une hauteur sous plafond allant jusqu'à 9ml, deux mezzanines de 100 et 45 m², un espace sanitaires, douche et cuisine dédié au personnel de 35 m².
L'ensemble est en excellent état, très bien équipé : - chauffage/climatisation des bureaux par pompe à chaleur - alarme périmétrique et vidéo surveillance - câblage RJ 45 avec baie de brassage - 3 portes sectionnelles pour la partie activité ( une de 4 x 5 ml de haut et deux de 3 x 3 de haut)
Vous avez besoin de plus de renseignement ou souhaitez visiter, n'hésitez pas à me contacter : Jacques Lamoureux, consultant en immobilier d'entreprise chez Avinim Réseau Brokers Gsm : 06 03 79 07 33 jacques.lamoureux@avinim-brokers.fr
AVINIM RESEAU BROKERS est le premier cabinet immobilier d'entreprise structuré en réseau de mandataires. Nous maillons avec notre équipe de 80 Brokers une grande partie du territoire national pour accompagner nos entreprises clientes dans leurs recherches de commerces, bureaux, locaux d'activités, immeubles et fonciers. www.reseau-brokers.com
Honoraires à la charge du vendeur. Classe énergie C, Classe climat A. Les informations sur les risques auxquels ce bien est exposé sont disponibles sur le site Géorisques : georisques.gouv.fr.