Beau 2 pièces à Paris (75017) - Rue Dautancourt - PREMIER
Paris 75017
Épinettes
Honoraires à la charge de l'acquéreur (Prix hors honoraires : 289000.00 euros).
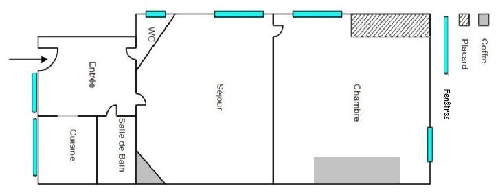
Beau 2 pièces à Paris (75017) - Rue Dautancourt - PREMIER ACHAT OU LOCATIF - Au rez-de-chaussée d'un bel immeuble pierre de taille - Idéal pour un investisseur. DPE = E (2026) Il se distingue par ses moulures, boiseries, son joli parquet et une élégante cheminée. Tout le charme de l'ancien. L'appartement se compose d'une entrée distribuant : un séjour lumineux avec cheminée, une chambre confortable avec dressing, ainsi qu'une cuisine américaine fonctionnelle, ouverte sur le séjour et une belle salle d'eau avec WC. Une cave complète ce bien. Toutes les fenêtres sont à double vitrage pour une isolation sonore et thermique optimale. De plus, il dispose d'un dressing. Il offre une vue agréable sur une cour calme et verdoyante. Digicode et interphone. Proche tous transports et commerces. A rafraîchir. Pour une visite, contactez Franck au 07 79 82 41 39 Depuis 25 ans, nous sommes à votre service pour être le meilleur conseiller à chaque étape de vos projets.L'Immobilier Parisien, la meilleure adresse pour trouver la vôtre !
Les informations sur les risques auxquels ce bien est exposé sont disponibles sur le site Géorisques : www.georisques.gouv.fr
34.6 m²
8 642 €
15 m²
2
1
1
1
3.46 %
Oui
Oui
Oui
Oui
Oui
Consommations énergétiques
Logement économe
312
Logement énergivore (kWhEP/m2/an)
Émissions de gaz à effet de serre
Faible émission de GES
12
Forte émission de GES(kgeqCO2/m2/an)
Contact Franck DECUIGNIERRE
Contacter gratuitement à l'aide du formulaire ci-dessous.