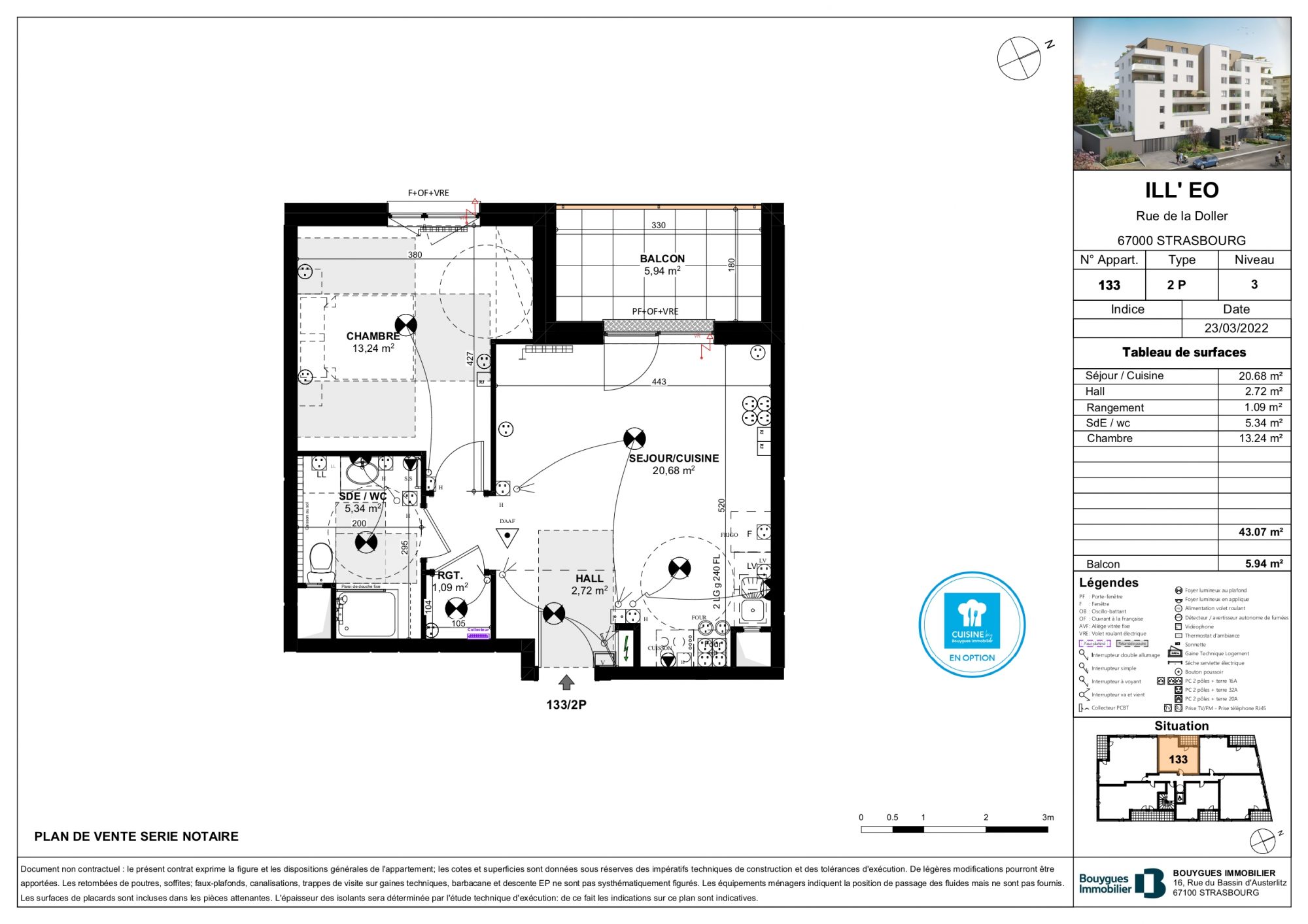
Beau F2 de 40m2, entièrement rénové à MOLSHEIM Centre
Molsheim 67120
0
Honoraires à la charge de l'acquéreur (Prix hors honoraires : 0 euros).
Les charges de location sont prévisionnelles mensuelles avec régularisation annuelle.
La part des honoraires pour la réalisation de létat des lieux de ce bien est de 136 euros.
Beau F2 de 40m2, entièrement rénové à MOLSHEIM Centre. JS Habitat vous propose rue des Capucins à MOLSHEIM centre et au calme, ce F2 de 39,67m2 (45,6m2) situé au 4 et dernier étage avec ascenseur d'un immeuble de 1988. Ce bien dispose d'une entrée avec placard, une cuisine meublée et ouvert sur un spacieux séjour, une chambre avec un emplacement dressing, une salle de douche avec W.C. Mode de chauffage individuel électrique, volet électrique, double vitrage, parquet et carrelage au sol. En annexes, le bien dispose d'un grenier privatif. Libre à partir du 15 avril 2026. Pour tous renseignements, merci de contacter M. BAKRIM au 06 50 46 44 48 Plus de photos sur notre site.
Honoraires de 440 TTC à la charge du locataire comprenant 136 TTC pour l'état des lieux. Loyer de base 680 /mois. Provision sur charges 30 /mois, régularisation annuelle. Dépôt de garantie 680 . Classe énergie D, Classe climat A Montant moyen estimé des dépenses annuelles d'énergie pour un usage standard, établi à partir des prix de l'énergie de l'année 2021 : entre 703.00 et 951.00 . Les informations sur les risques auxquels ce bien est exposé sont disponibles sur le site Géorisques : georisques.gouv.fr.
Votre conseiller JS Habitat : Agent immobilier - Samir BAKRIM Carte T CPI67012018000024350 RCP MMA IARD
40 m²
2
1
1
1
4 sur 4
440 %
30.00 € / mois
1988
Sud
Oui
Oui
Oui
Oui
Consommations énergétiques
Logement économe
188
Logement énergivore (kWhEP/m2/an)
Émissions de gaz à effet de serre
Faible émission de GES
5
Forte émission de GES(kgeqCO2/m2/an)
Contact JS Habitat
Contacter gratuitement à l'aide du formulaire ci-dessous.