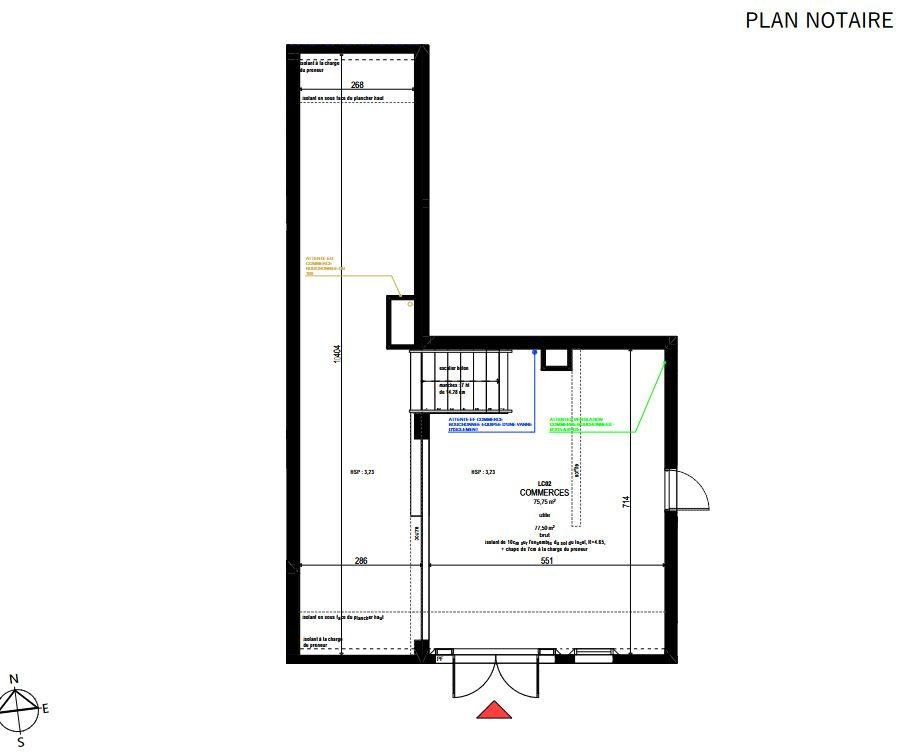
Arles centre ville, proche des universités, de la tour LUMA et de la nouvelle école de photographie, parking gratuit pendant 1h30 au pied du bâtiment, nous vous proposons cet ensemble de locaux professionnels d'environ 73m². Situé au premier étage avec ascenseur d'une copropriété accueillant toutes sortes de profession libérale et médicale, il offre un espace de travail idéal pour installer votre activité. Vous serez séduit par ses beaux volumes permettant l'aménagement des espaces à votre convenance. Ce produit est équipé de la climatisation reversible et de menuiseries en double vitrage. Il benéficie également d'une place de stationnement privative. A voir sans tarder! Contact au 0673511952
Honoraires à la charge du vendeur. Dans une copropriété de 2 lots. Quote-part moyenne du budget prévisionnel 600 /an. Aucune procédure n'est en cours. DPE en cours. Les informations sur les risques auxquels ce bien est exposé sont disponibles sur le site Géorisques : georisques.gouv.fr. Ce bien vous est proposé par un agent commercial (Entreprise individuelle).