Belle Bâtisse Ancienne en Pierre à Bernis - Charme et Caractère Authentiques Description Située en plein centre de Bernis juste à côté de l'église du village, dans un environnement paisible et à proximité immédiate de toutes les commodités, cette magnifique demeure en pierres dégage un charme authentique et un caractère unique. Caractéristiques de la Propriété
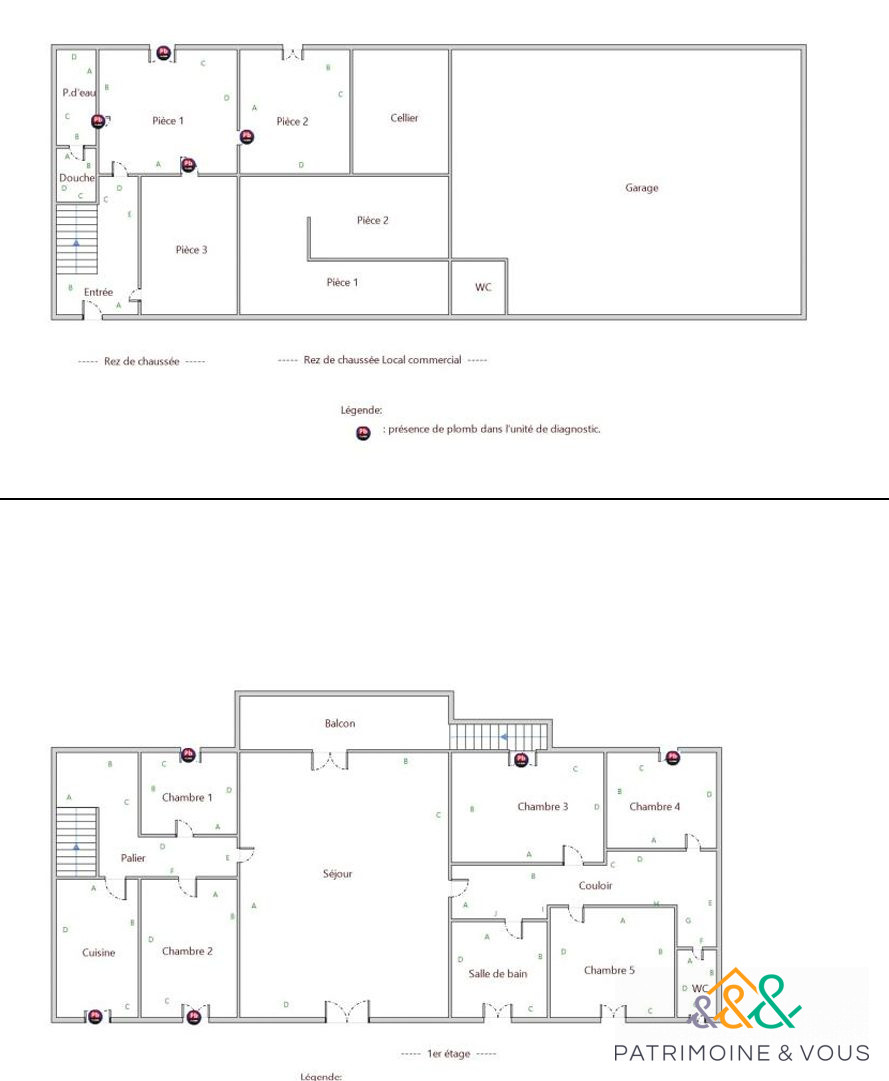
Surface Habitable : 300 m2 à rénover Potentiel : Idéal pour un projet touristique (gîte, chambres d'hôtes) ou pour accueillir une grande famille pour une résidence secondaire dans le sud de la France.
Extérieurs
Terrasse plein sud : 40 m2, idéale pour profiter du soleil. Jardin de 140 m2 : Piscinable et sans vis-à-vis, offrant un véritable havre de paix. Annexe : 80 m2 avec poutres apparentes, ajoutant au charme de la propriété.
Atouts Cette propriété présente un grand potentiel et offre de nombreuses possibilités d'aménagement pour mettre en valeur son charme et son caractère unique. Contact Pour plus d'informations ou pour organiser une visite, contactez-nous au À visiter sans tarder ! - Annonce rédigée et publiée par un Agent Mandataire -
370 m²
910 €
12
Sud
Contact . GLOBAL INVEST
Contacter gratuitement à l'aide du formulaire ci-dessous.