Honoraires à la charge de l'acquéreur (Prix hors honoraires : 261000 euros).
Les charges de location sont prévisionnelles mensuelles avec régularisation annuelle.
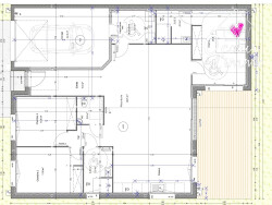
Maison de Plain pied 115 m2 + garage
UNIQUEMENT CHEZ 'Ô COEUR DE L IMMO'
FRAIS DE NOTAIRE REDUITS ( 6500e !!! au lieu de 19700e )
Proche de Cholet, sur la commune du May sur Evre ; en lotissement découvrez ce plain pied de 2025 ( aux normes pmr ) composée : d'une entrée; une pièce de vie soit 56 m2 avec cuisine aménagée et équipée; une suite parentale ( grande chambre de 15,5m2 + sa salle d'eau privative ); 2 chambres de 11 m2 ; 1 salle d'eau principale; 1 wc indépendant , 1 lingerie ( chauffée et isolée ) et un garage intégré de +/- 22m2.
PMR : oui
Coté extérieur : une grande terrasse ; un passage latéral pour un accès un jardin sans passer par la maison.
Visitable de suite; DPE A / A livraison : +/- janvier 2026
Maison à la nome RE 2020 ( dpe = A !!!!), maison chauffée par une pompe à chaleur (pac air/eau duo ) , offrant une économie d'énergie pour le chauffage et la production d'eau chaude sanitaires.
fRAIS DE NOTAIRE REDUITS
Visitable de suite;
UNIQUEMENT CHEZ 'Ô COEUR DE L IMMO'
habitable : 114,6m2. garage intégré : 21,8 m2. pour 1 véhicule + du rangement
frais de notaire : REDUIT ( soit +/- 2,5 au lieu de 8% ou 8,5%) assainissement tout à l égout : oui (vendue avec contrôle /conformité assainissement ) eu et ep séparatifs fibre optique : raccordable : oui ( lotissement fibré ) sous garanties décennales : oui chauffage : pac air/eau plancher chauffant vmc : basse consommation hygro b stationnements extérieurs sur parcelle privative : possible 2. pas de charges de copropriété.
Information d'affichage énergétique sur ce bien : classe ENERGIE A indice 42 et classe CLIMAT A indice 4.
Prix honoraires inclus soit 3,02 % et à la charge de l acquéreur Prix net vendeur : 261000e ttc Honoraire d'agence : 7900,00e ttc Soit 268900e fai
Les informations sur les risques auxquels ce bien est exposé sont disponibles sur le site Géorisques : georisques.gouv.fr
Contactez l'Agence « Ô Coeur de l'immo » Tél : 07/86/78/57/27 , Mail : / jcr@ /-
La présente annonce immobilière a été rédigée sous la responsabilité éditoriale d'Agent Commercial immatriculé au Registre Spécial des Agents Commerciaux du Tribunal de Commerce de ANGERS sous le numéro 633 203 169 EI, pour le compte de l'Agence Ô Coeur de l'immo. Prix honoraires inclus et à la charge de l'acquéreur Référence annonce : 1774JCR
Honoraires inclus de 3.03% TTC à la charge de l'acquéreur. Prix hors honoraires 261 000 . Classe énergie A, Classe climat A. Les informations sur les risques auxquels ce bien est exposé sont disponibles sur le site Géorisques : georisques.gouv.fr.
114.6 m²
2 346 €
444 m²
5
3
2
1
3.03 %
13/02/2026
2024
Sud
1
Consommations énergétiques
Logement économe
42
Logement énergivore (kWhEP/m2/an)
Émissions de gaz à effet de serre
Faible émission de GES
4
Forte émission de GES(kgeqCO2/m2/an)
Contact Jean-Claude REXAND
Contacter gratuitement à l'aide du formulaire ci-dessous.